3,940
Square Ft.
3,874
Finished
4
Beds
3½
Baths
4
Garage
0.18
Acres
Sales Agent:

Taylor Winget
801-680-5386
taylor.winget@raineyhomes.com
Coming Soon to Beacon Pointe
Estimated Completion: Early 2026
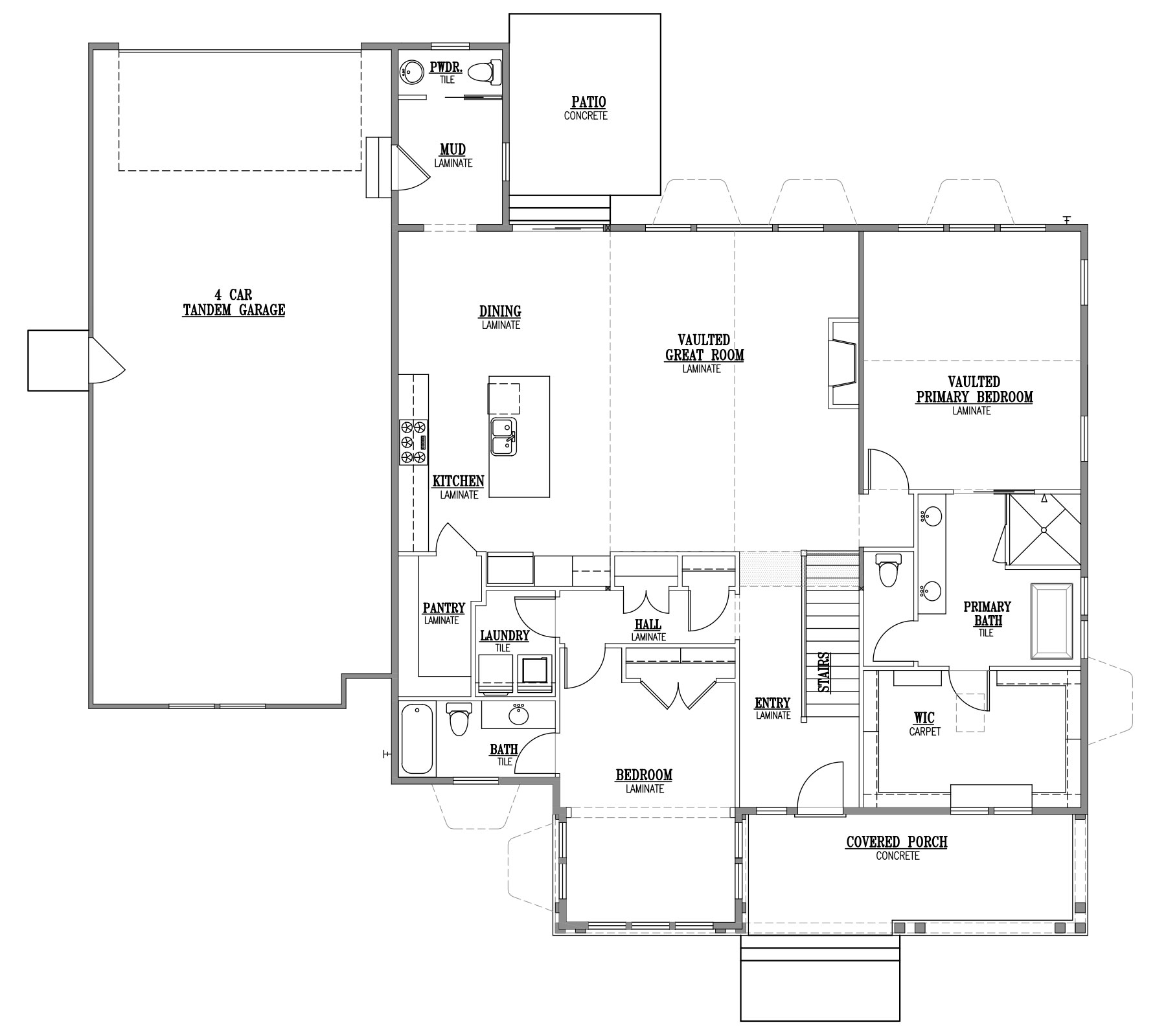
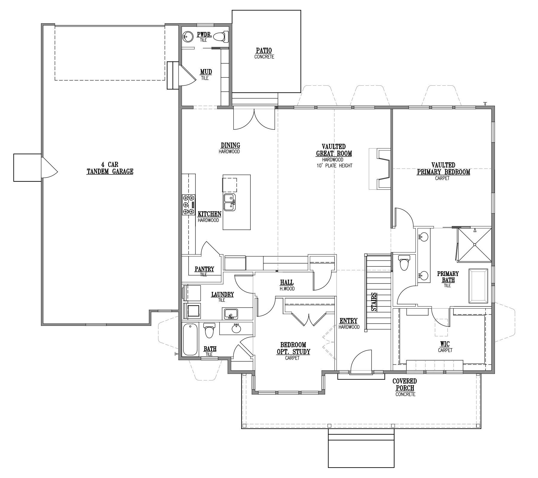
Presenting the Madison Craftsman at Beacon Pointe, Rainey Homes' latest addition to our collection of rambler floor plans. This home features a spacious owner's suite on the main level with a vaulted ceiling and an impressive walk-in closet with windows. The heart of the home is the chef's kitchen with custom appliances, perfect for culinary enthusiasts. With a vaulted great room, hardwood floors, and a versatile bonus room with full bath, this home is ideal for both relaxation and entertainment. The partially finished basement includes 2 additional bedrooms, a full bathroom, and a rec room, providing ample space for family and guests. The XL cold storage beneath the front porch adds extra convenience and storage. This home also boasts upgraded flooring and finishes throughout, completing the perfect living experience.
Explore More Beacon Pointe Available Homes
*Prices subject to change at any time
VIP List Sign Up
Interested in this and other Rainey Homes? Sign up for our VIP list and stay connected with us.
This website is secure
Your information is safe with us!
Sales Agent
Taylor Winget
I'm proud to represent Rainey Homes, where quality and design meet. Let’s find your next home!
AIM Realty, Inc.
Preferred Lender:

Closing cost incentives may be available for this home when you use our preferred lender.
(801) 810-6503 | www.Team101.com | West Jordan, UT 84081 | Member FDIC |






