5,735
Square Ft.
5,257
Finished
7
Beds
4½
Baths
3
Garage
0.34
Acres
Sales Agent:

Doug Schwartz
480-363-8928
doug.schwartz@raineyhomes.com
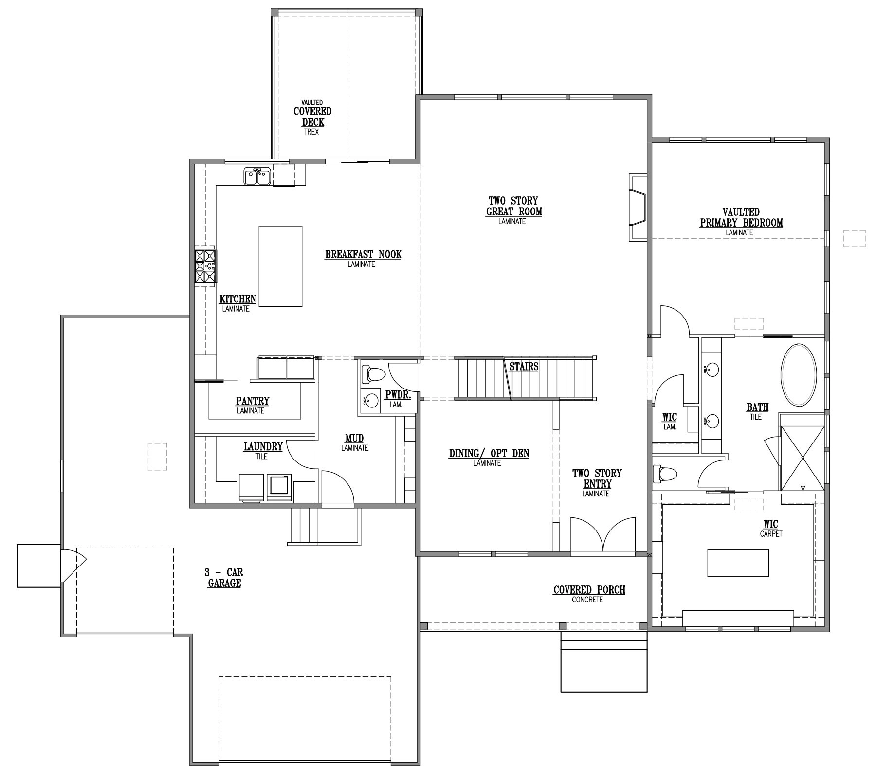
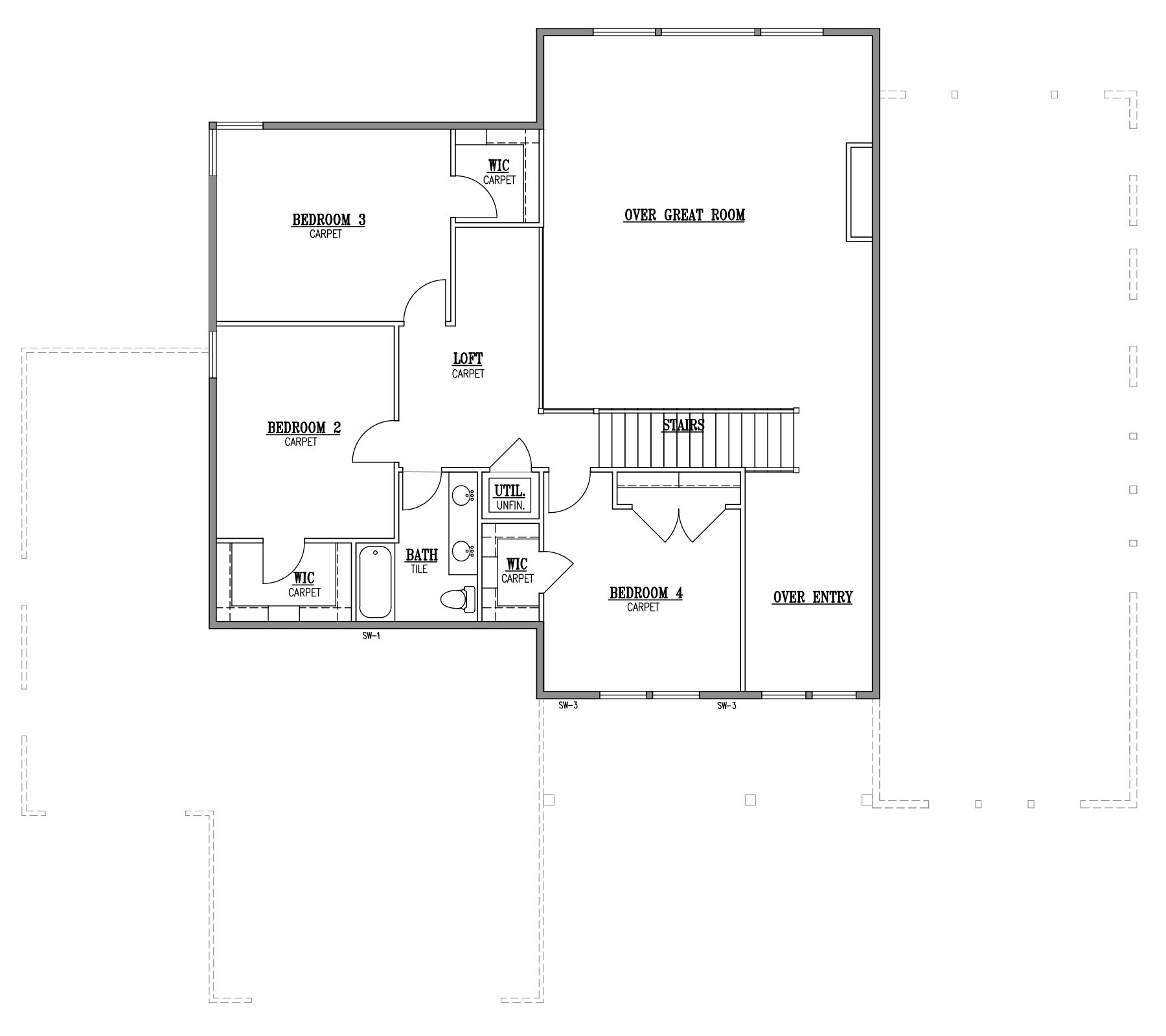
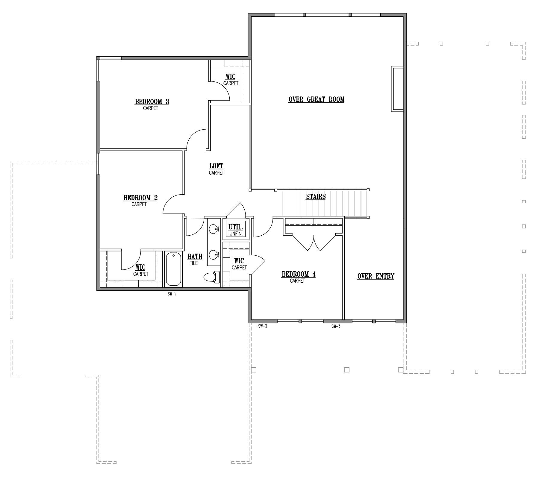
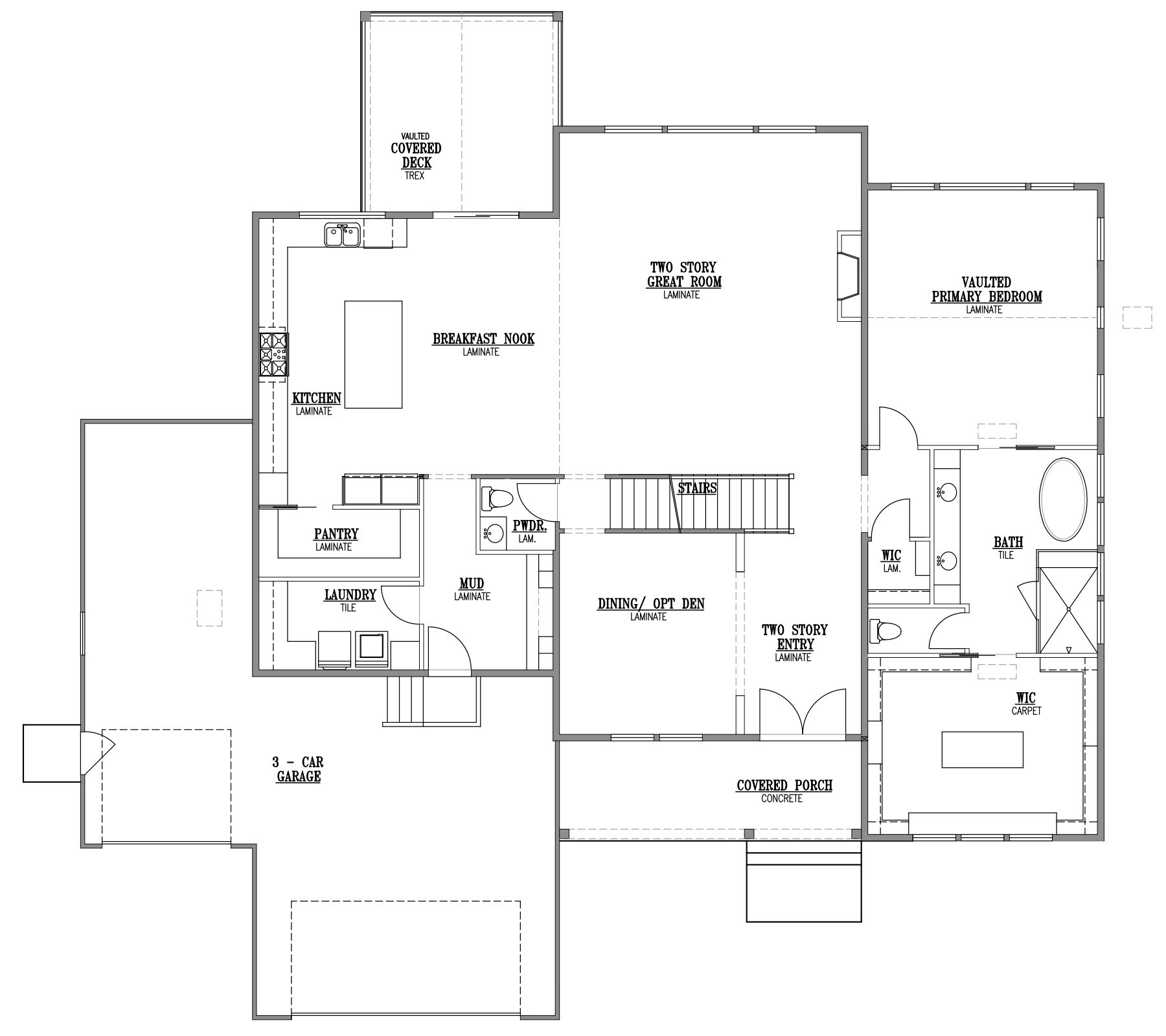
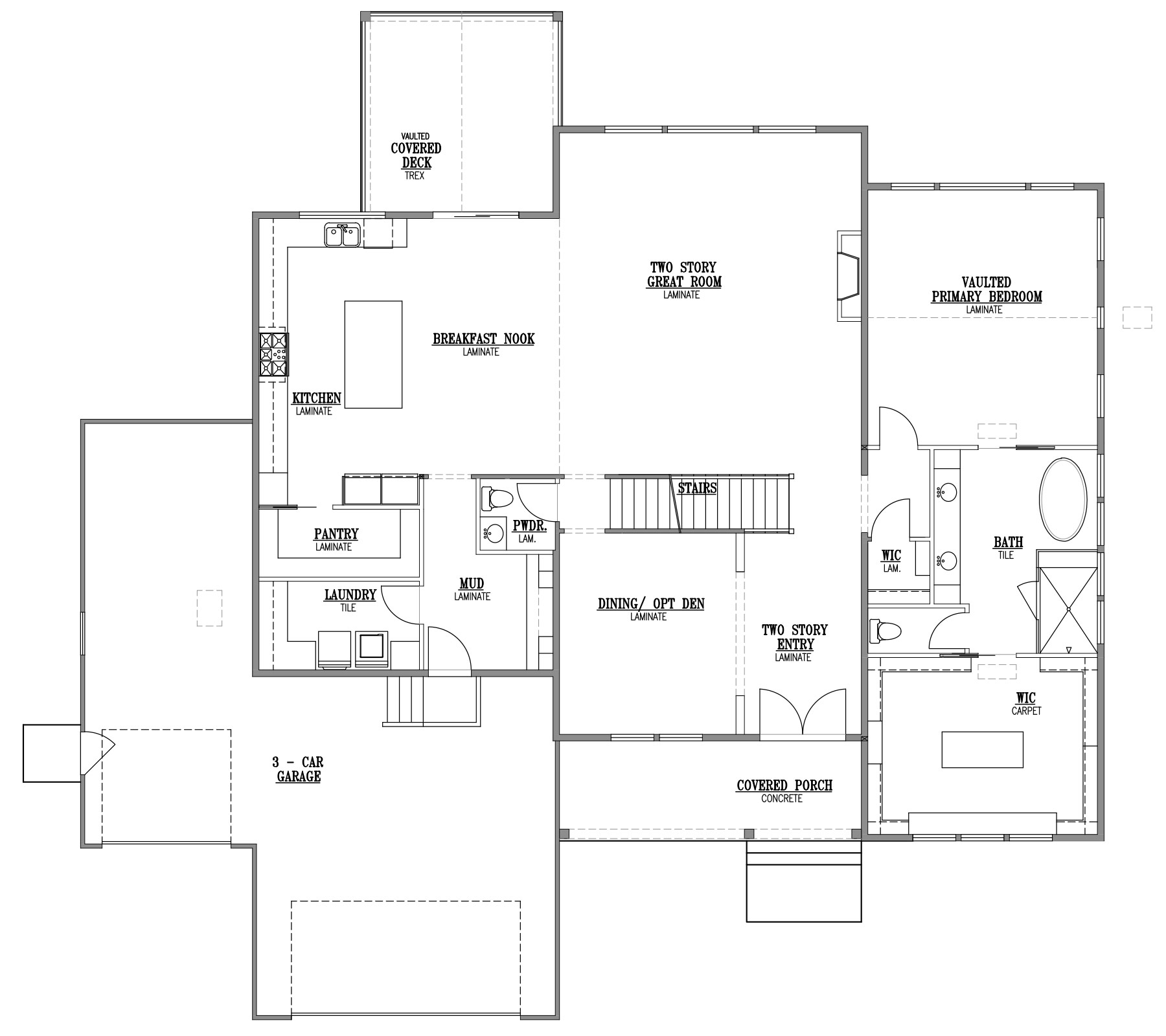
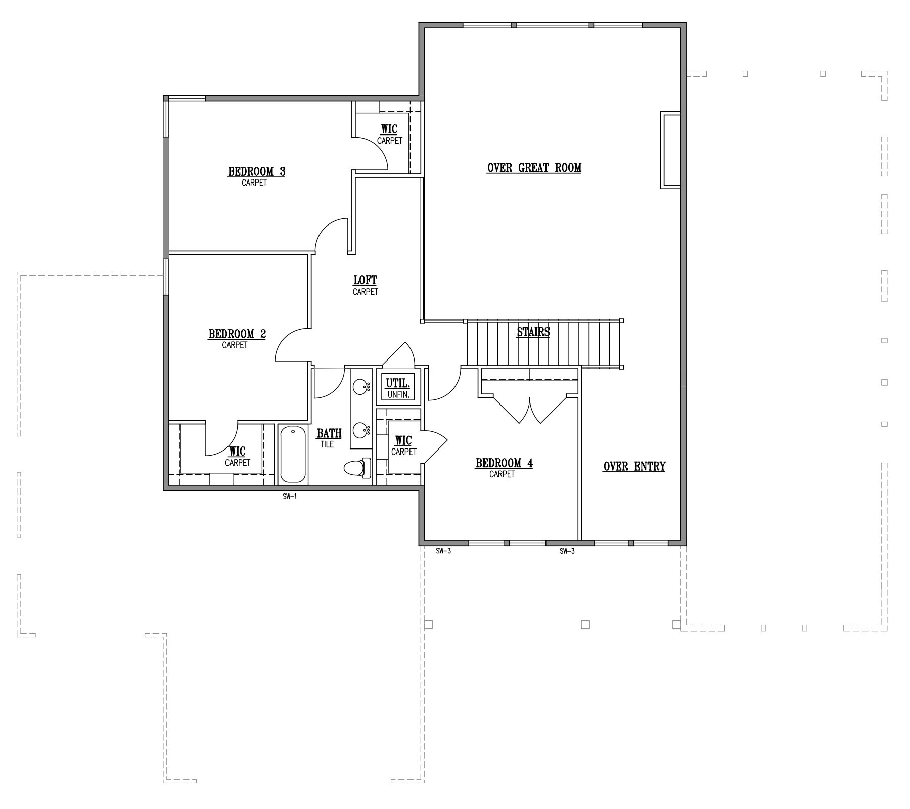
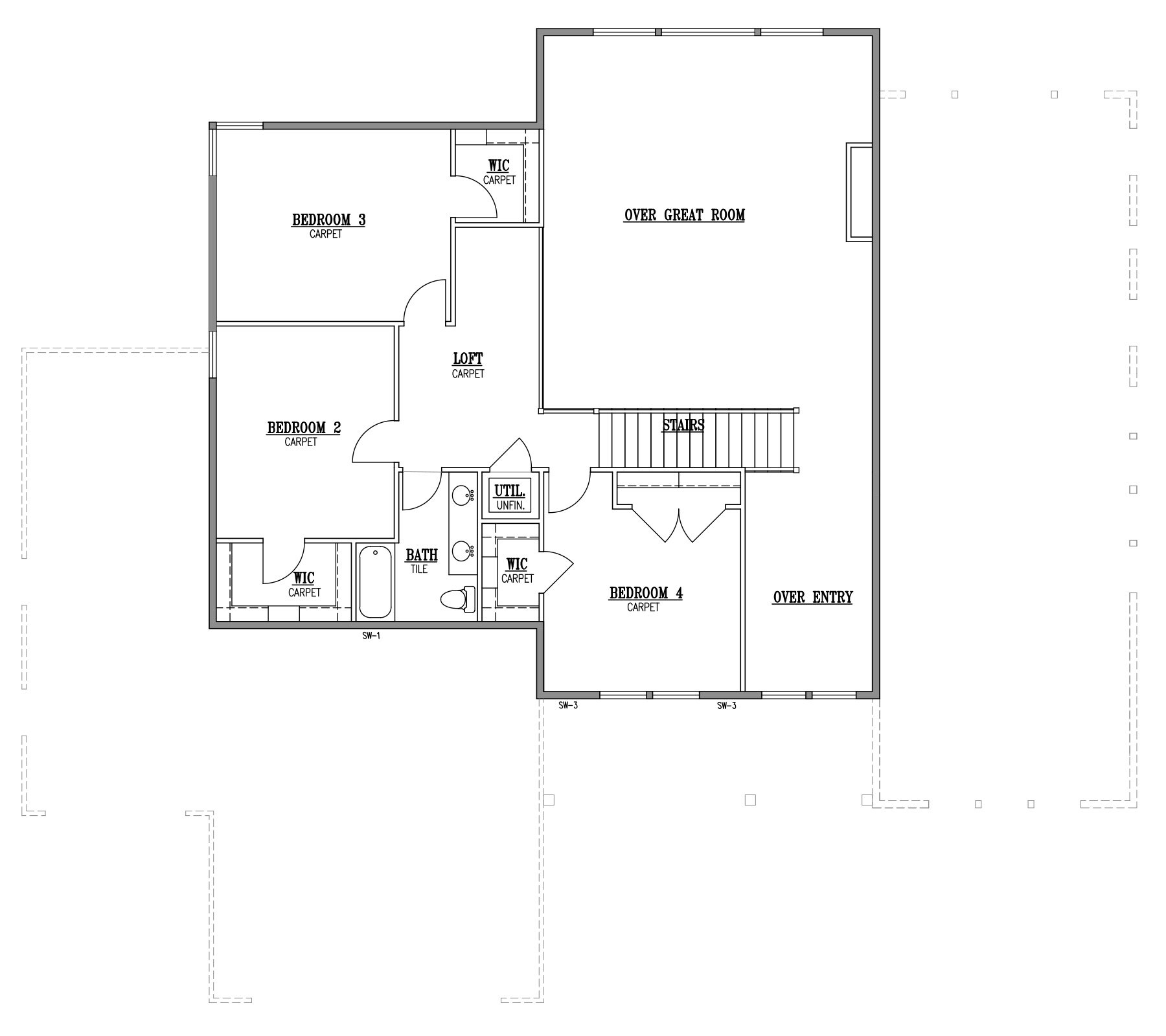
The Providence Custom Home at Miller Meadows
Estimated Completion: Early 2026
Welcome to this custom one-of-a-kind home in Miller Meadows, where timeless architectural character meets a thoughtfully designed, spacious layout. A welcoming covered porch opens to a dramatic two-story entry, with a formal dining room or den conveniently located just off the foyer. The heart of the home is a stunning two-story great room with soaring ceilings and a fireplace, creating an inviting space filled with natural light. The main-floor luxurious primary suite features an expansive walk-in closet with windows and a center island. The gourmet kitchen includes a large pantry, breakfast nook, and easy access to a vaulted, covered deck—perfect for entertaining. The finished basement completes the home with a giant recreation room, three bedrooms, two full bathrooms, and a large unfinished storage area, offering exceptional flexibility for guests, recreation, or future needs.
Photo Gallery
Photos are of actual home (as of April 5th, 2026).
Explore More Quick Move-Ins From Rainey Homes
*Prices subject to change at any time
VIP List Sign Up
Interested in this and other Rainey Homes? Sign up for our VIP list and stay connected with us.
This website is secure
Your information is safe with us!
Sales Agent
Doug Schwartz
I've been proudly representing Rainey Homes for over 10 years. Let's chat about your next home.
AIM Realty, Inc.
Preferred Lender:

Closing cost incentives may be available for this home when you use our preferred lender.
(801) 810-6503 | www.Team101.com | West Jordan, UT 84081 | Member FDIC |






































