4,246
Square Ft.
4,203
Finished
5
Beds
3½
Baths
4
Garage
Sales Agent:

Doug Schwartz
480-363-8928
doug.schwartz@raineyhomes.com
Discover The Arlington from Rainey Homes
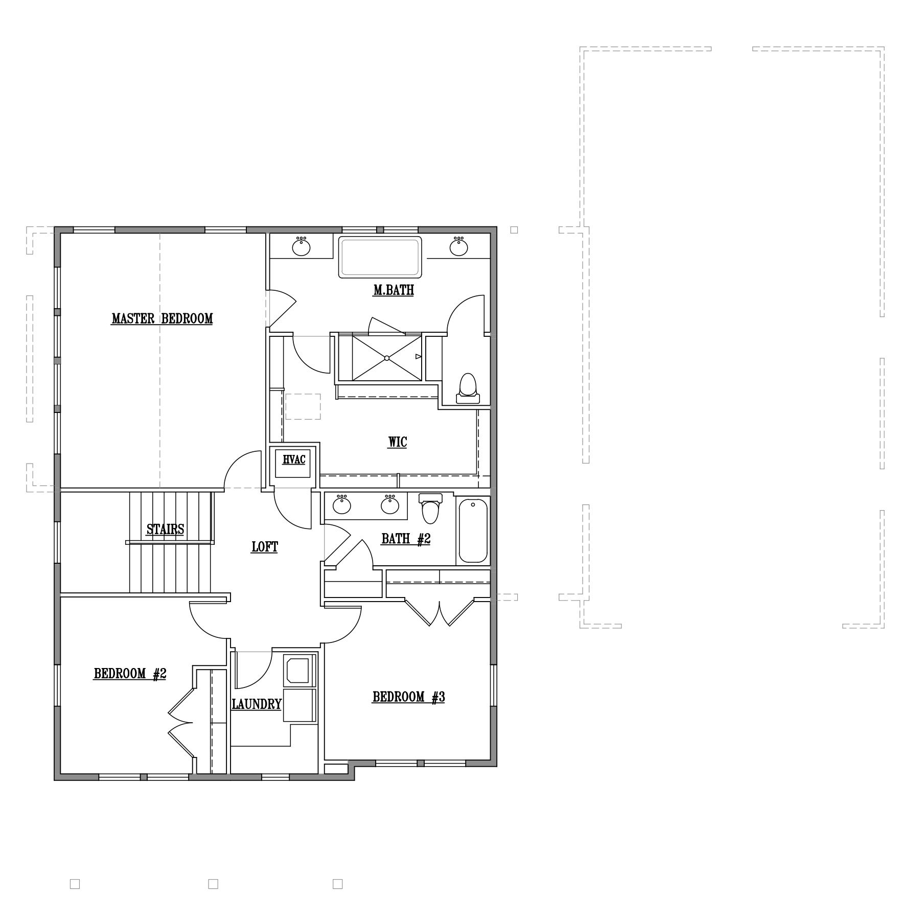
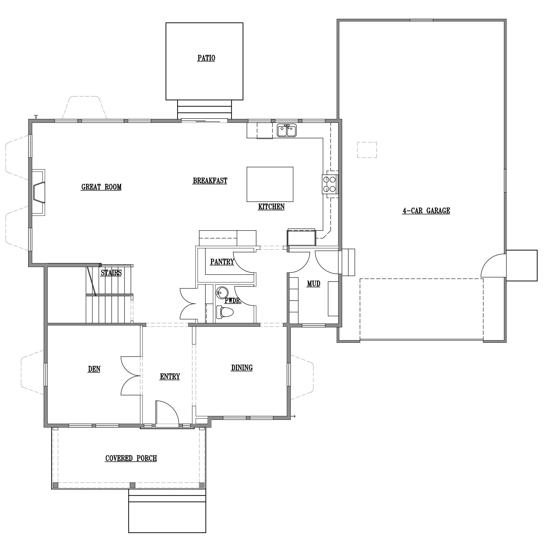
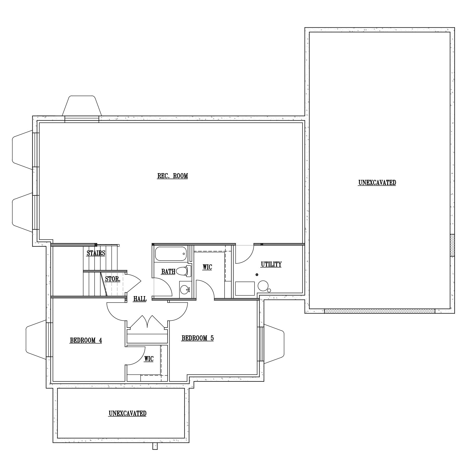
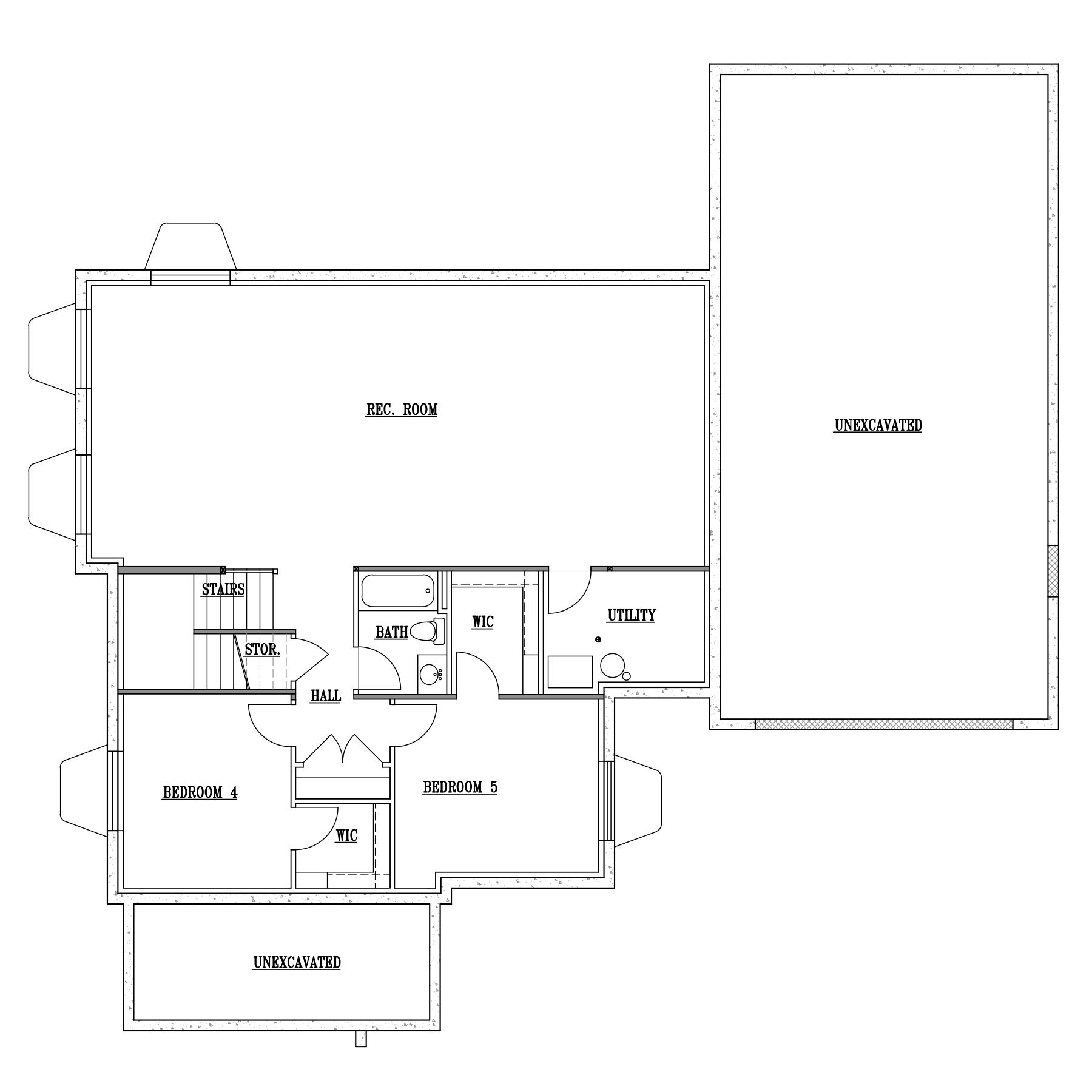
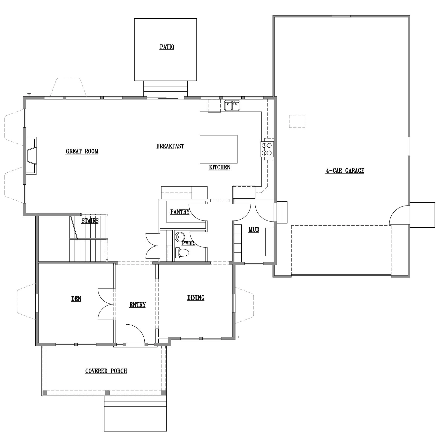
The Arlington is the home you've been waiting for! Open concept kitchen, breakfast nook and great room, with the mudroom and powder bathroom just off the breakfast nook. Features 2 flex spaces off of the entry (think office, formal living room or formal dining room—the options are endless!). This home has a vaulted grand suite option upstairs with separate vanities, free standing tub, luxurious shower and a huge walk-in closet. Also located upstairs is the laundry room, 2 bedrooms and a full bathroom. When finished, the basement has an additional 2 bedrooms, 1 bathroom and large recreation room.
Virtual Tour
Take the professional 360 degree virtual tour of our Arlington floor plan.
Photo Gallery
Photos selected may show options that are not standard in all of the homes we build.
Communities With The Arlington
Currently offered in the following communities:
Beacon Pointe
Saratoga Springs, UT 84045
Single-family homes starting in the $850,000s*
Mountain View Estates
Farmington, UT 84025
Single-family homes starting in the $850,000s*
Terraine
West Jordan, UT 84081
Single-family homes starting in the $775,000s*
Watermark & Cascade Villages at Daybreak
South Jordan, UT 84009
Single-family homes starting in the $600,000s*
Arlington Quick Move-Ins
*Prices subject to change at any time
Get In Touch
Interested in building a home like this? Get in touch with us today to talk through the process of building a luxury home with Rainey.
This website is secure
Your information is safe with us!
Sales Agent
Doug Schwartz
I've been proudly representing Rainey Homes for over 10 years. Let's chat about your next home.
AIM Realty, Inc.
Preferred Lender:

Closing cost incentives may be available for this home when you use our preferred lender.
(801) 810-6503 | www.Team101.com | West Jordan, UT 84081 | Member FDIC |










































