5,263
Square Ft.
2,603
Finished
3
Beds
2½
Baths
3
Garage
Sales Agent:

Doug Schwartz
480-363-8928
doug.schwartz@raineyhomes.com
Discover The Georgetown from Rainey Homes
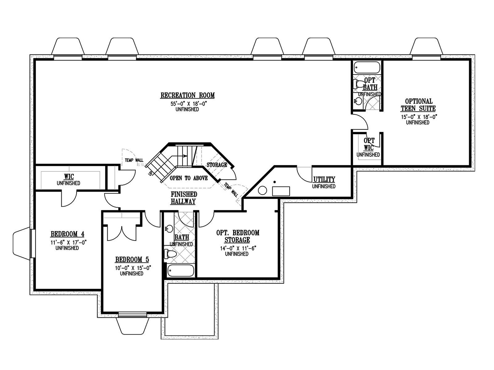
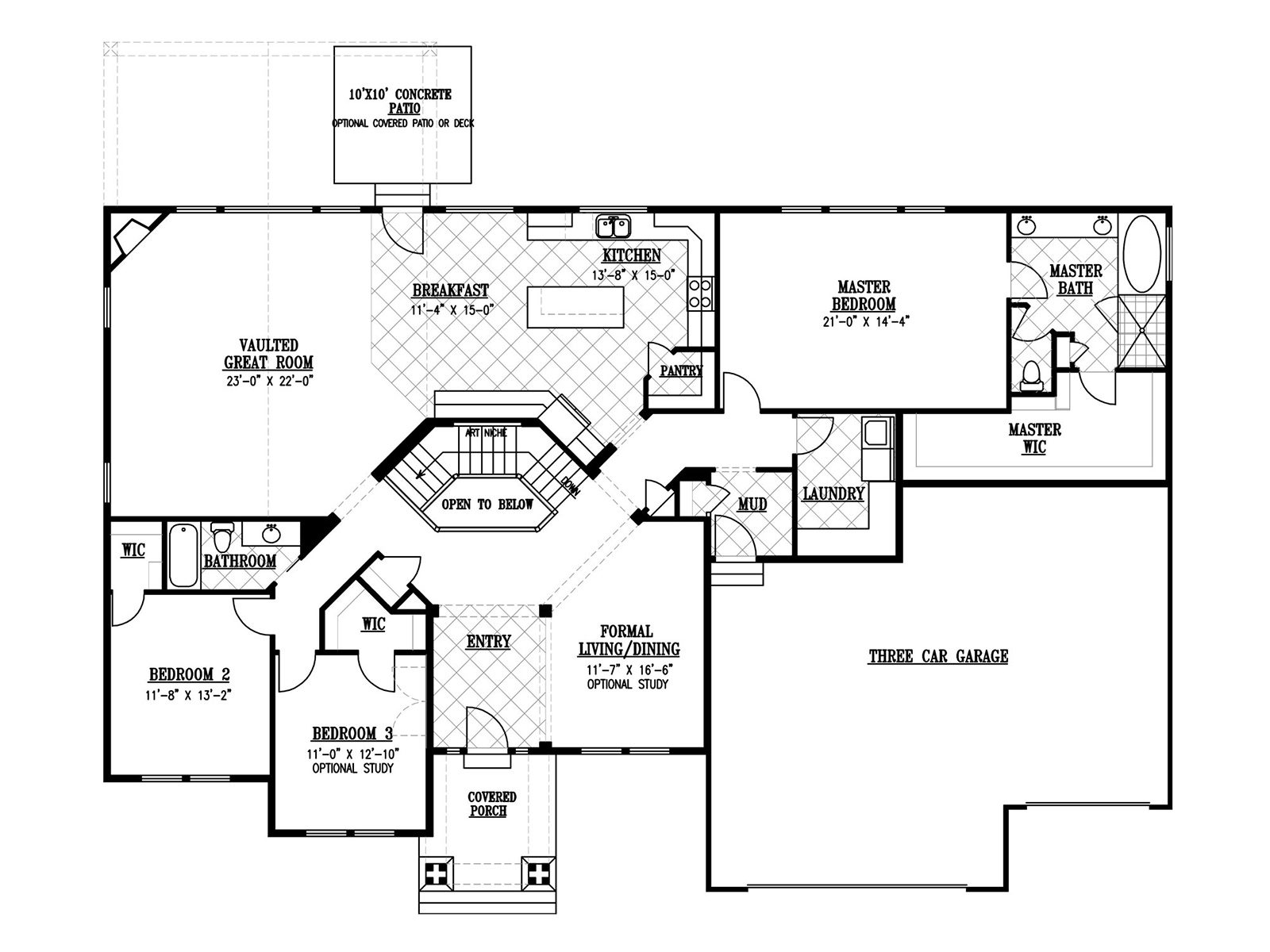
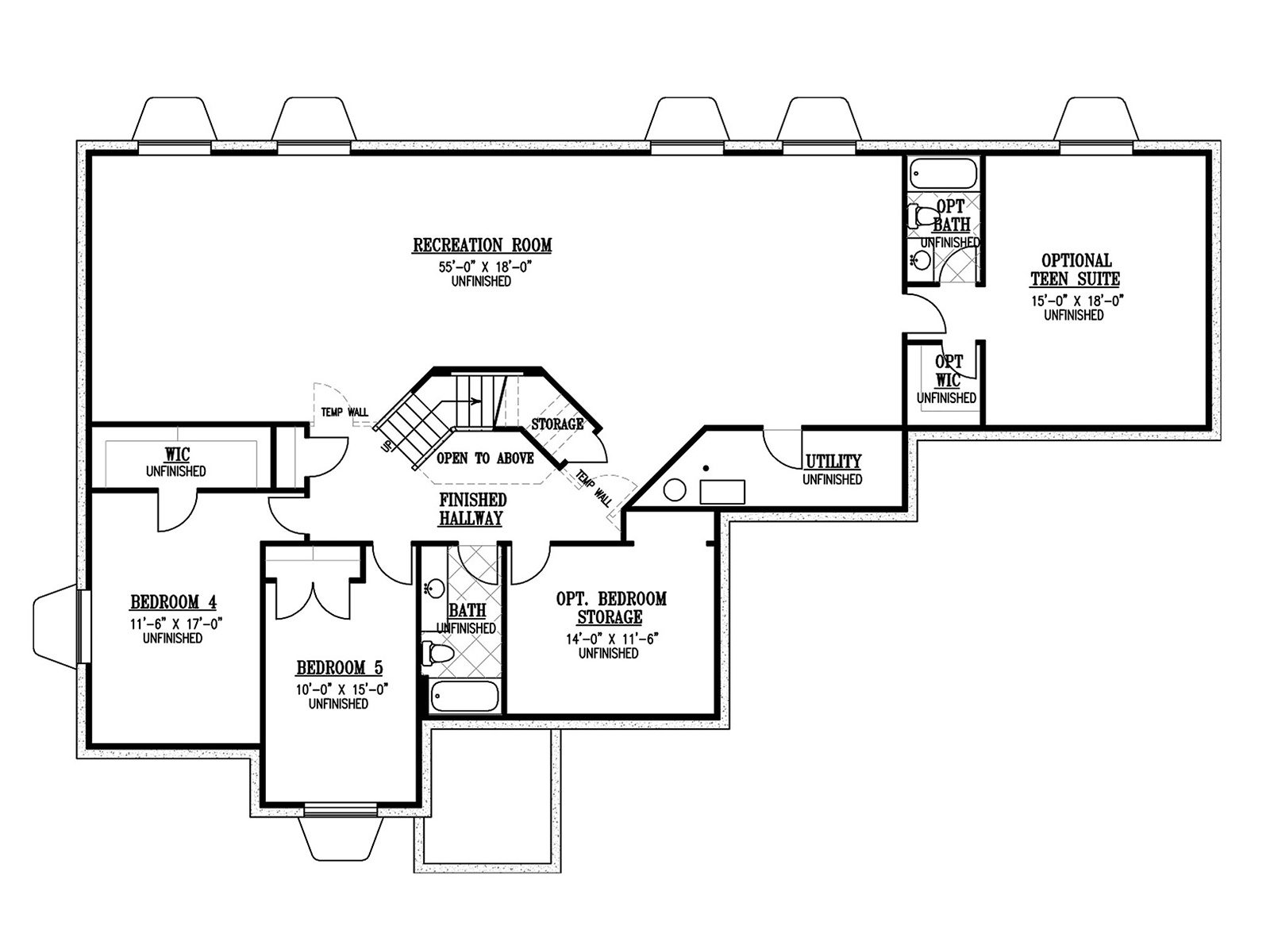
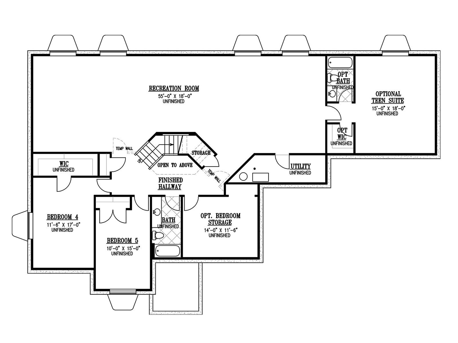
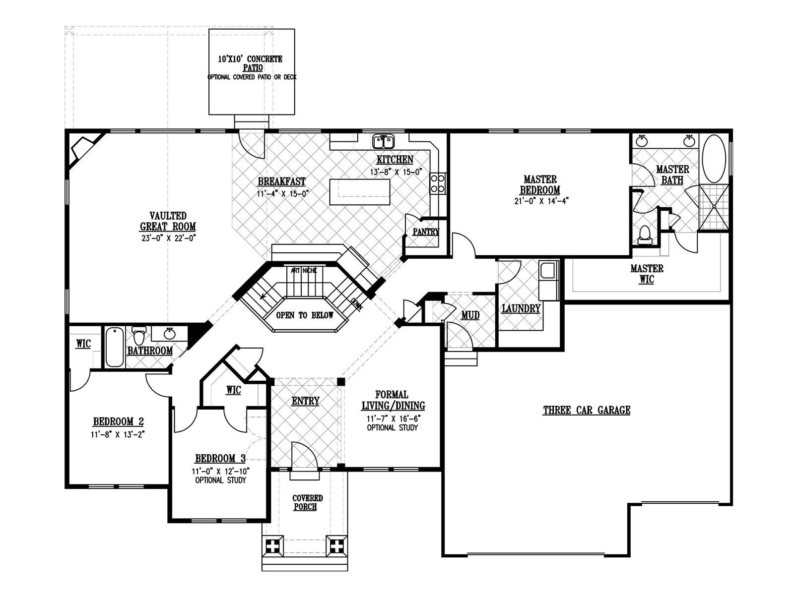
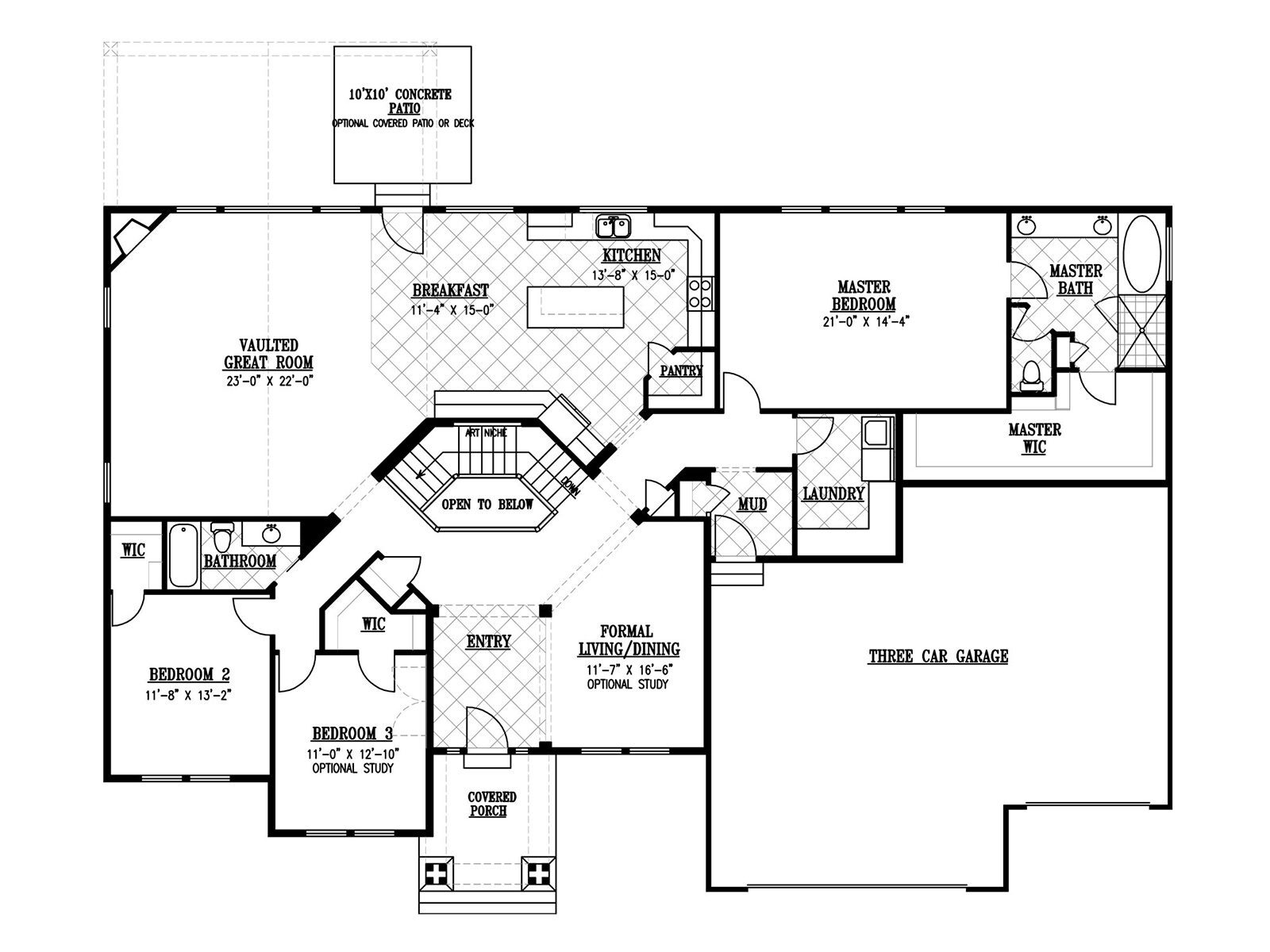
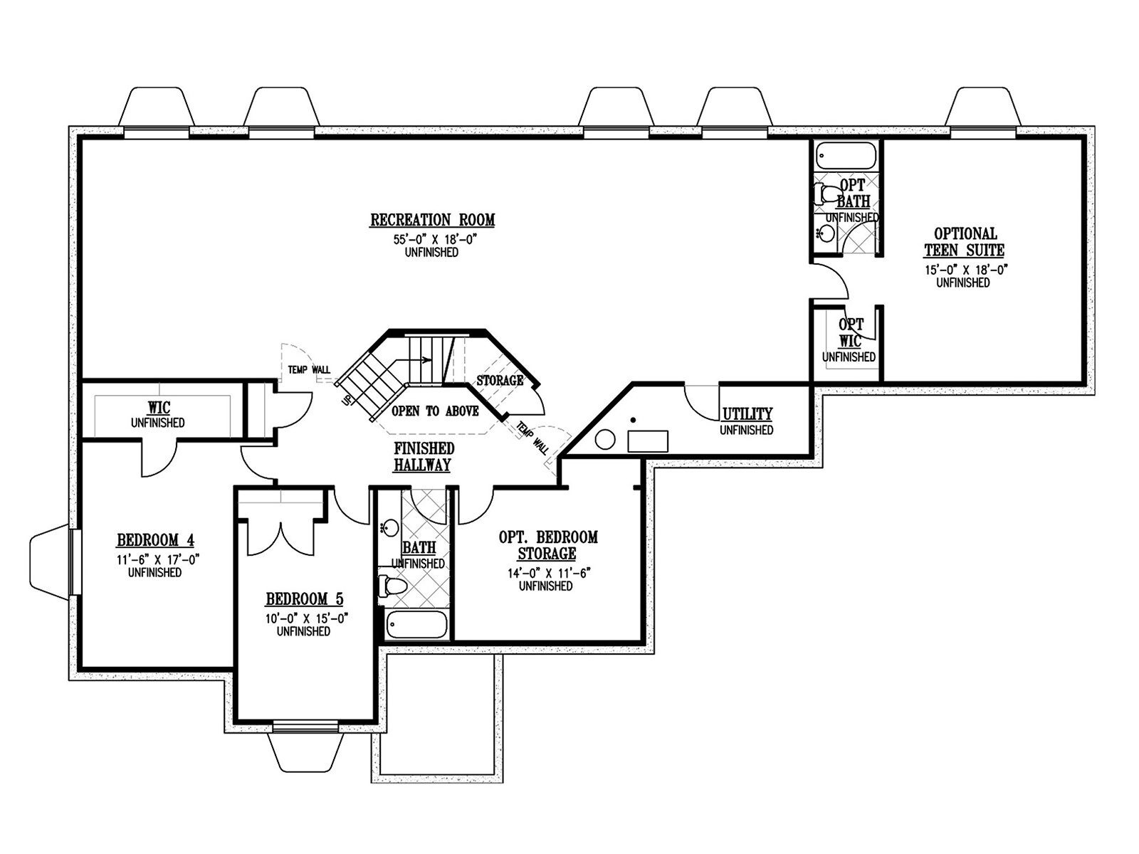
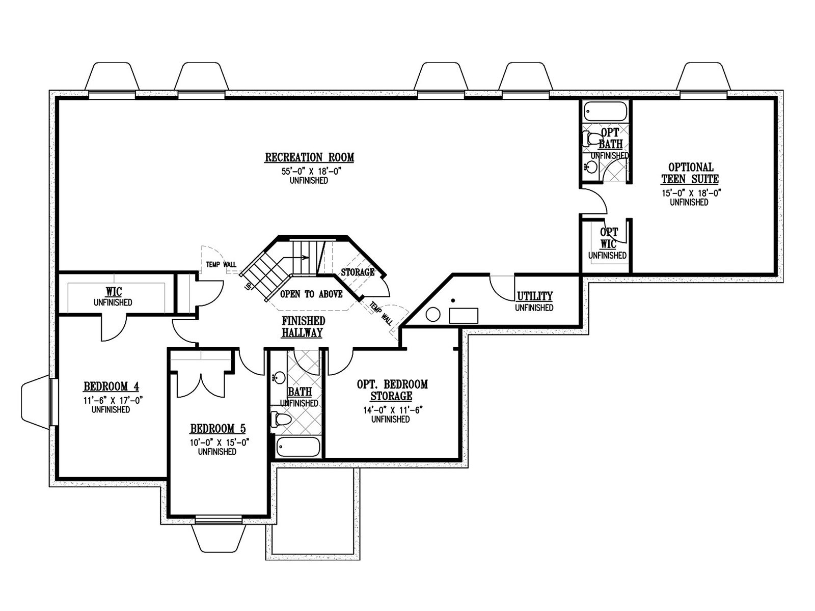
The Georgetown Floor Plan by Rainey Homes features high-quality finishes, a vaulted great room with fireplace, formal living/dining room, covered front porch, open-to-below stairwell to basement with art niche, and optional covered patio/deck. An optional finished basement with 3 beds and 2 baths is also available. Overall, the Georgetown Floor Plan by Rainey Homes is a beautiful and well-designed home that offers a perfect balance of style and function. The attention to detail and high-quality finishes make this home truly stand out.
Communities With The Georgetown
Currently offered in the following communities:
Not Currently Available
Sign up for our VIP List or call for more info.
Georgetown Quick Move-Ins
No current available homes with this floor plan. See other available homes here.
Explore More Floor Plans from Rainey Homes
Ellsworth
2-Story Home
4,433
Square Ft.
5
Beds
3½
Baths
4
Garage
5 Beds | 3½ Baths | 4,433 SQ FT
Get In Touch
Interested in building a home like this? Get in touch with us today to talk through the process of building a luxury home with Rainey.
This website is secure
Your information is safe with us!
Sales Agent
Doug Schwartz
I've been proudly representing Rainey Homes for over 10 years. Let's chat about your next home.
AIM Realty, Inc.
Preferred Lender:

Closing cost incentives may be available for this home when you use our preferred lender.
(801) 810-6503 | www.Team101.com | West Jordan, UT 84081 | Member FDIC |




