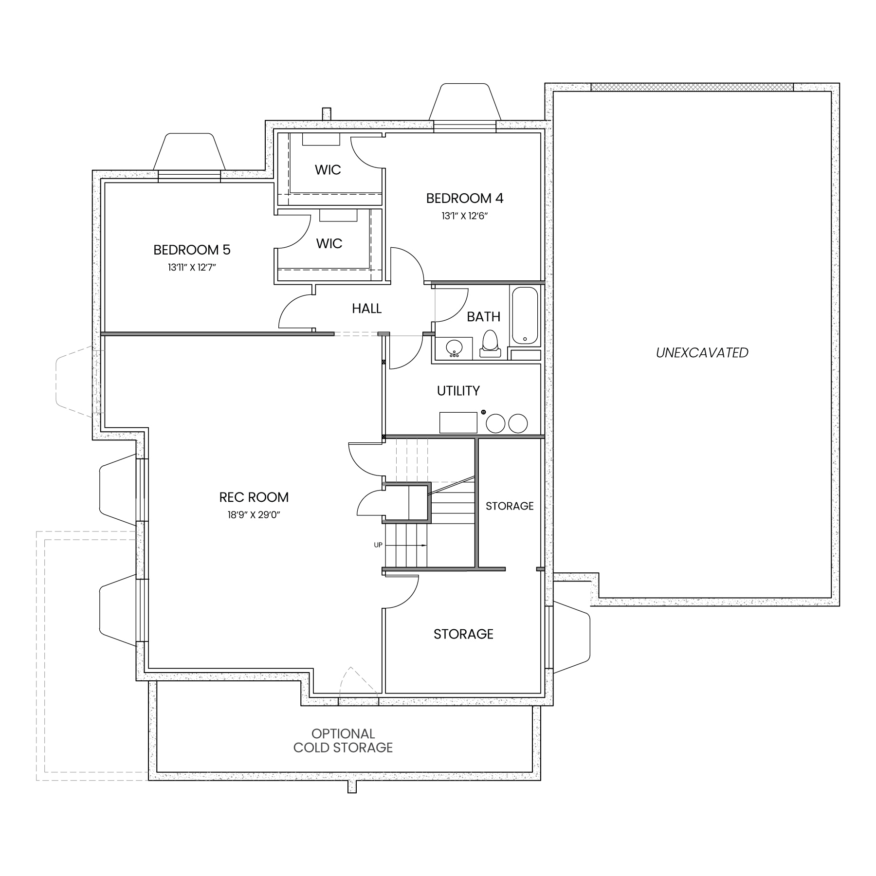
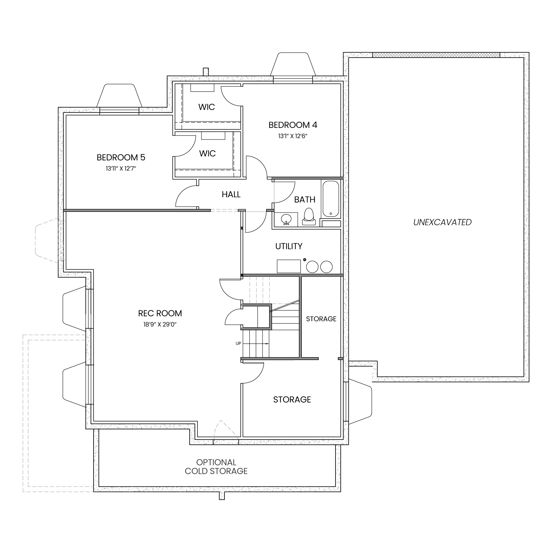
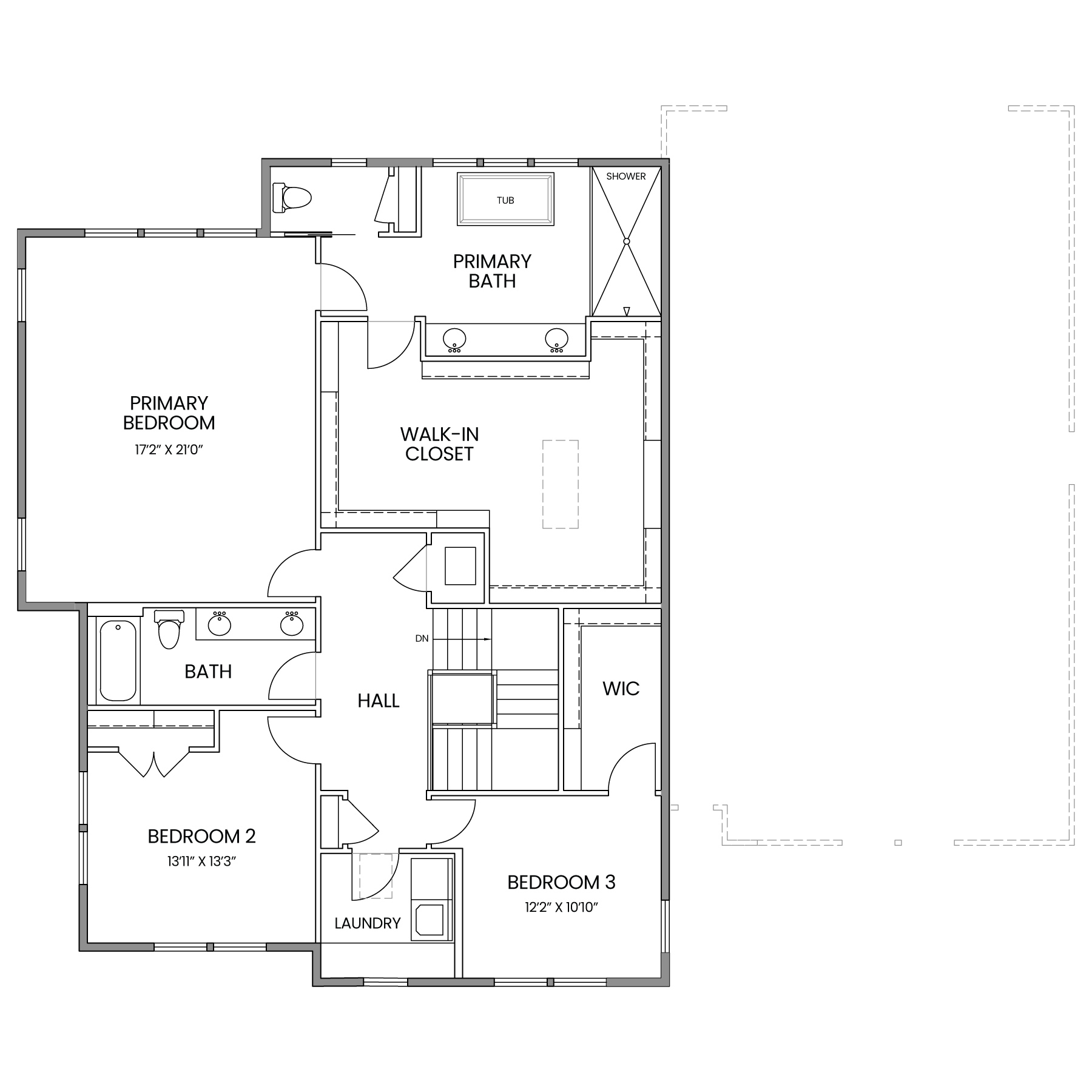
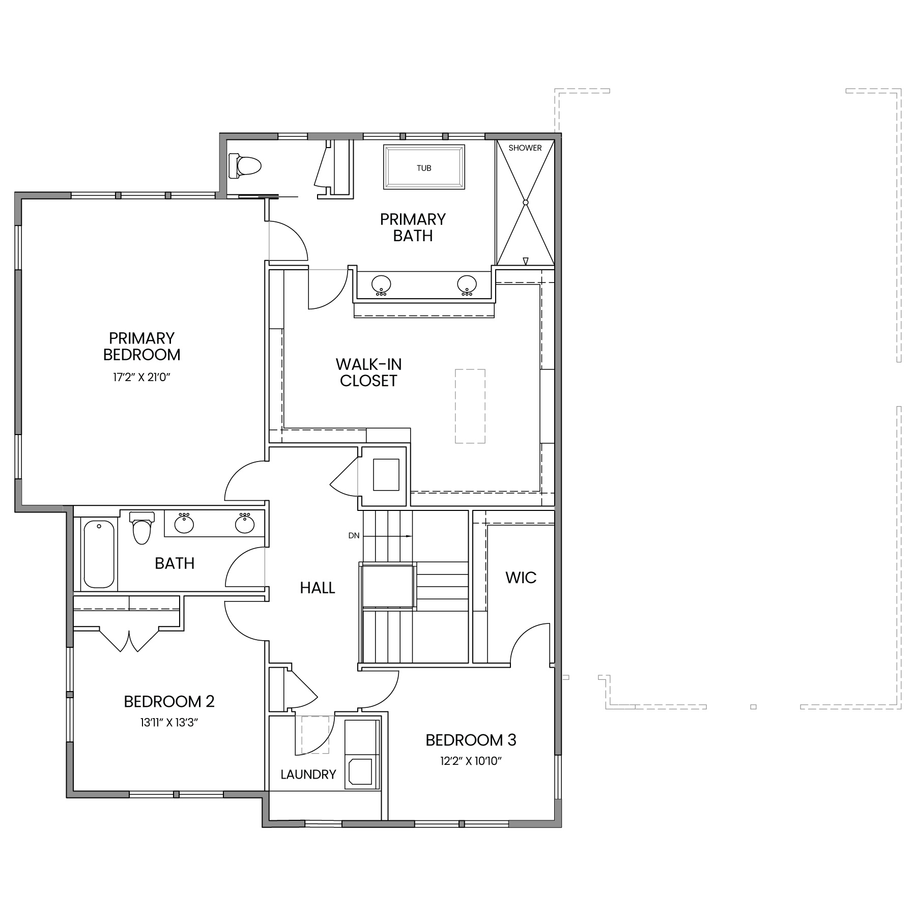
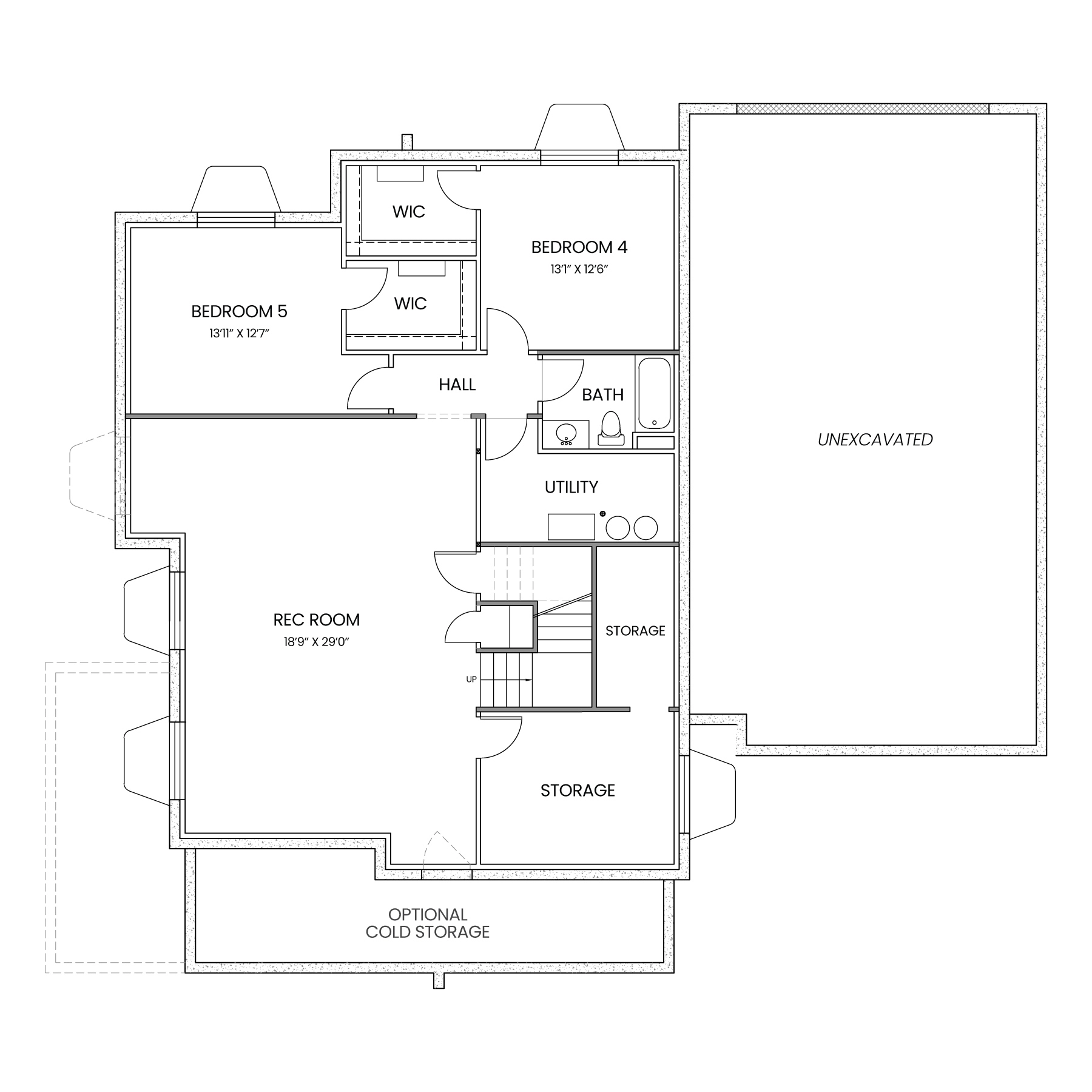
4,738
Square Ft.
4,441
Finished
5
Beds
3½
Baths
4
Garage
Sales Agent:

Taylor Winget
801-680-5386
taylor.winget@raineyhomes.com
Discover The Ridgefield from Rainey Homes
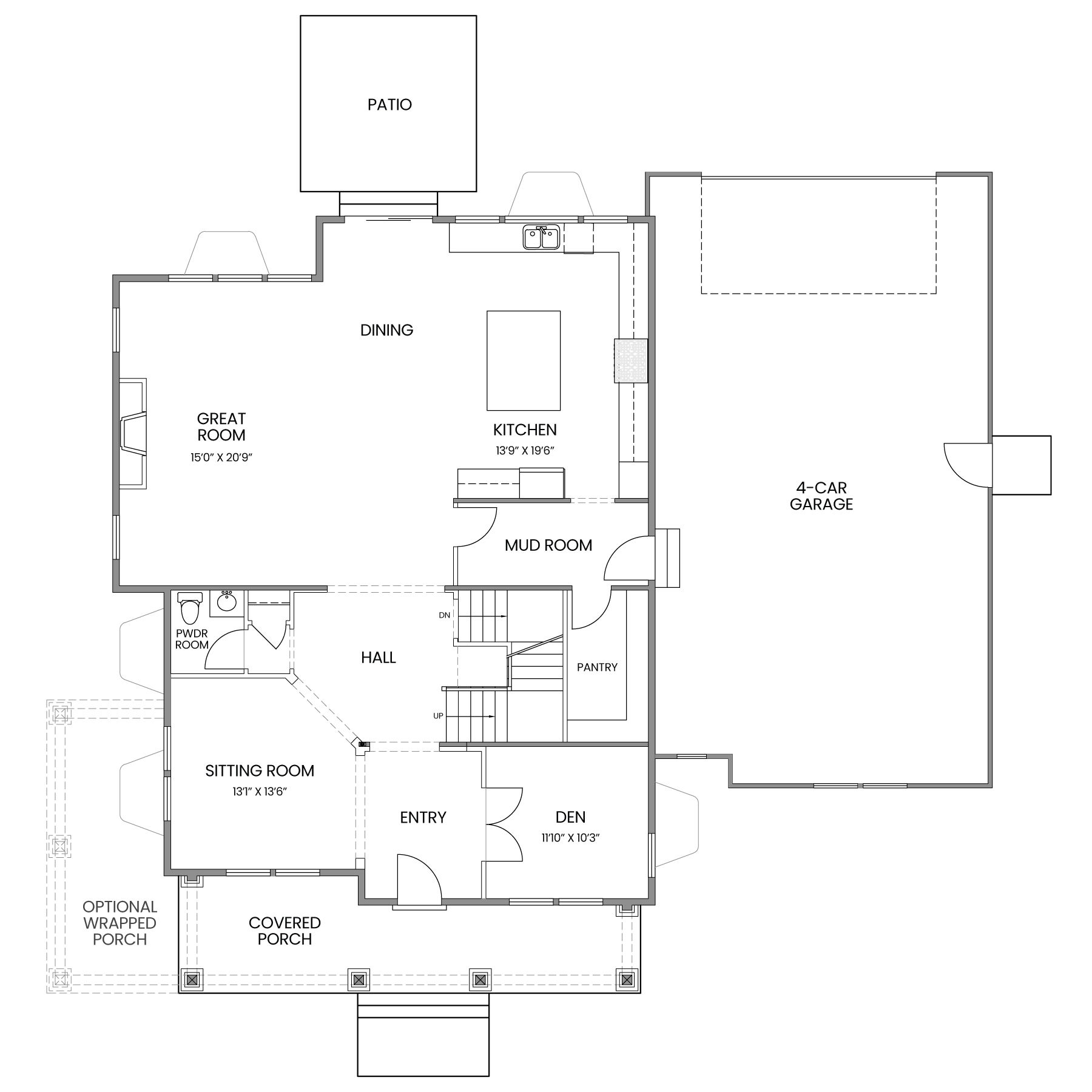
Introducing the Ridgefield—a modern and versatile floor plan designed to adapt to your lifestyle while delivering exceptional comfort and style. From its spacious open-concept layout that seamlessly connects the kitchen, great room, and dining area to its thoughtfully placed flex space and sitting room near the entry, the Ridgefield offers flexibility without compromise. The luxury owner’s suite provides a private retreat, complete with a generously sized walk-in closet, while the tandem 4-car garage and expansive covered front porch—with an available wraparound extension—add both convenience and charm. With three distinct elevations and upscale finishes throughout, the Ridgefield is the perfect blend of form and function.
Communities With The Ridgefield
Currently offered in the following communities:
Beacon Pointe
Saratoga Springs, UT 84045
Single-family homes starting in the $850,000s*
Mountain View Estates
Farmington, UT 84025
Single-family homes starting in the $850,000s*
Terraine
West Jordan, UT 84081
Single-family homes starting in the $775,000s*
Watermark & Cascade Villages at Daybreak
South Jordan, UT 84009
Single-family homes starting in the $600,000s*
Ridgefield Quick Move-Ins
*Prices subject to change at any time
Explore More Floor Plans from Rainey Homes
Goldfield
2-Story Home
4,930
Square Ft.
6
Beds
3½
Baths
3
Garage
6 Beds | 3½ Baths | 4,930 SQ FT
Capitola
2-Story Home
3,440
Square Ft.
5
Beds
3½
Baths
2
Garage
5 Beds | 3½ Baths | 3,440 SQ FT
Get In Touch
Interested in building a home like this? Get in touch with us today to talk through the process of building a luxury home with Rainey.
This website is secure
Your information is safe with us!
Sales Agent
Taylor Winget
I'm proud to represent Rainey Homes, where quality and design meet. Let’s find your next home!
AIM Realty, Inc.
Preferred Lender:

Closing cost incentives may be available for this home when you use our preferred lender.
(801) 810-6503 | www.Team101.com | West Jordan, UT 84081 | Member FDIC |


















