4,878
Square Ft.
2,428
Finished
3
Beds
2½
Baths
3
Garage
Sales Agent:

Doug Schwartz
480-363-8928
doug.schwartz@raineyhomes.com
Discover The Rockport from Rainey Homes
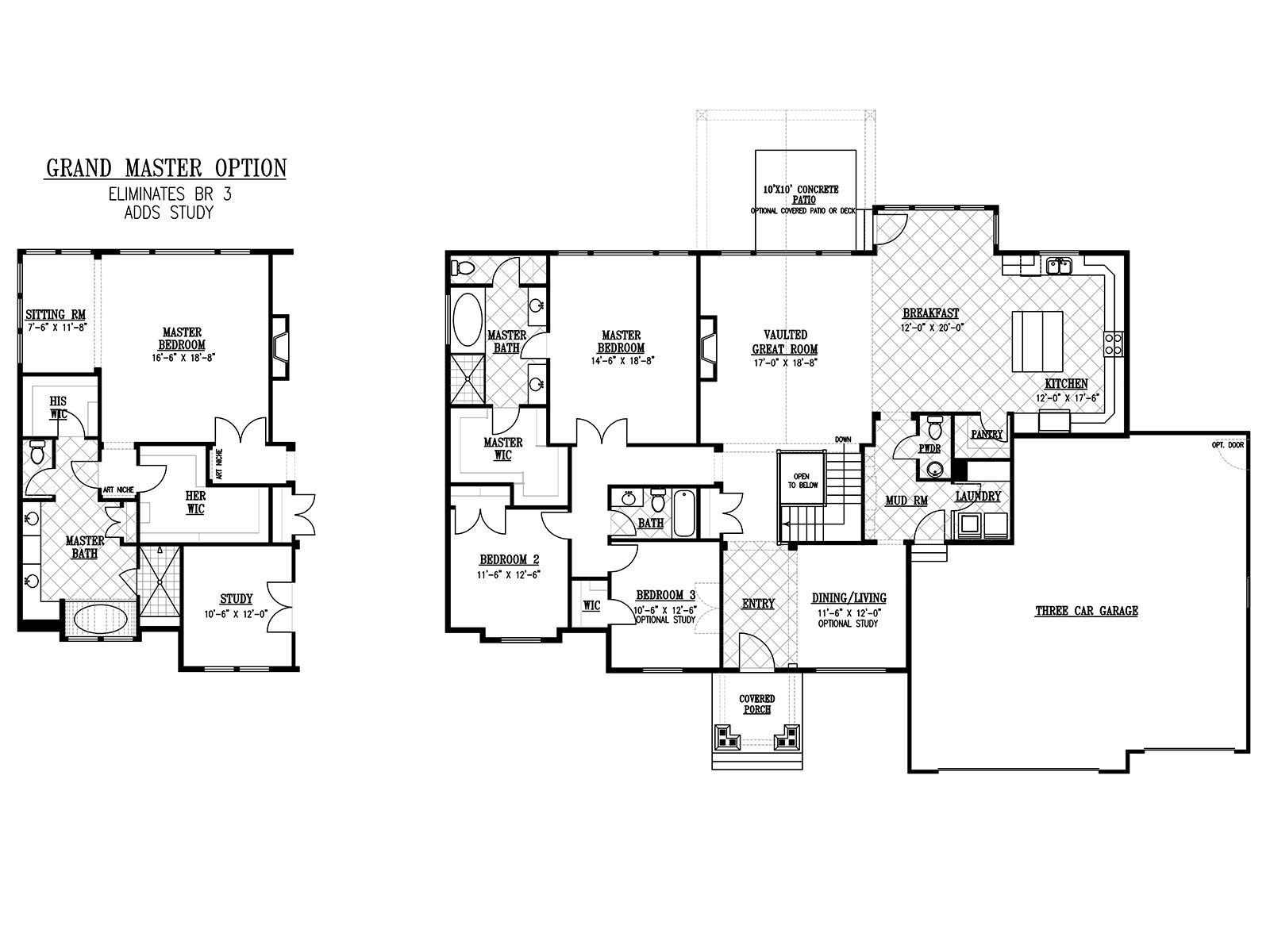
The Rockport Floor Plan by Rainey Homes offers a stunning vaulted great room with a fireplace, formal living/dining room, covered front porch, optional covered patio/deck, and an optional grand master bedroom with sitting room, his & hers walk-ins, and art niches (eliminates one bedroom). An optional finished basement with 3 beds and a stepped theater room is also available. This functional and luxurious home design is perfect for entertaining and relaxing in style.
Communities With The Rockport
Currently offered in the following communities:
Not Currently Available
Sign up for our VIP List or call for more info.
Rockport Quick Move-Ins
No current available homes with this floor plan. See other available homes here.
Get In Touch
Interested in building a home like this? Get in touch with us today to talk through the process of building a luxury home with Rainey.
This website is secure
Your information is safe with us!
Sales Agent
Doug Schwartz
I've been proudly representing Rainey Homes for over 10 years. Let's chat about your next home.
AIM Realty, Inc.
Preferred Lender:

Closing cost incentives may be available for this home when you use our preferred lender.
(801) 810-6503 | www.Team101.com | West Jordan, UT 84081 | Member FDIC |




