4,230
Square Ft.
3,891
Finished
5
Beds
3½
Baths
4
Garage
0.18
Acres
Sales Agent:

Doug Schwartz
480-363-8928
doug.schwartz@raineyhomes.com
Mortgage Rates As Low As 2.875%* For The First Year
Quick Move-In @ Cascade Village in Daybreak
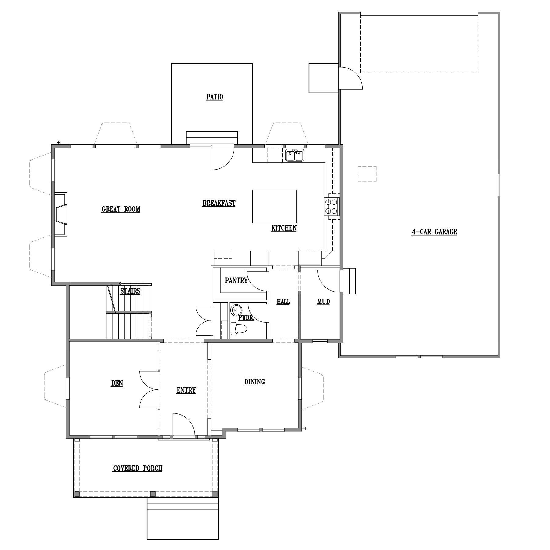
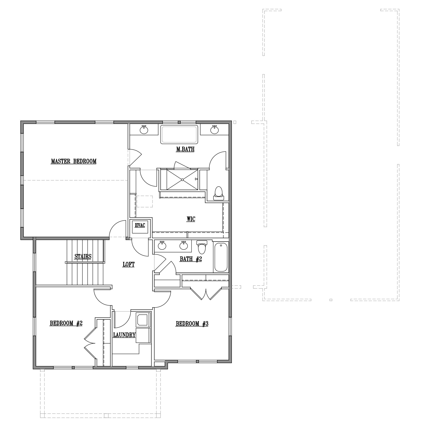
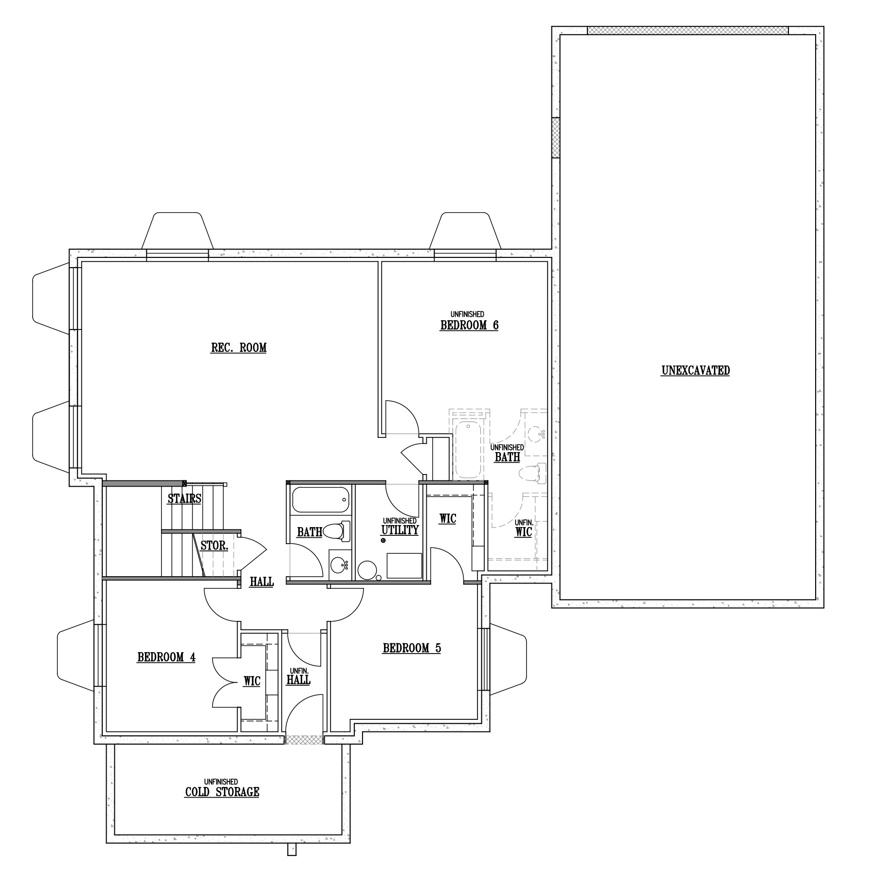
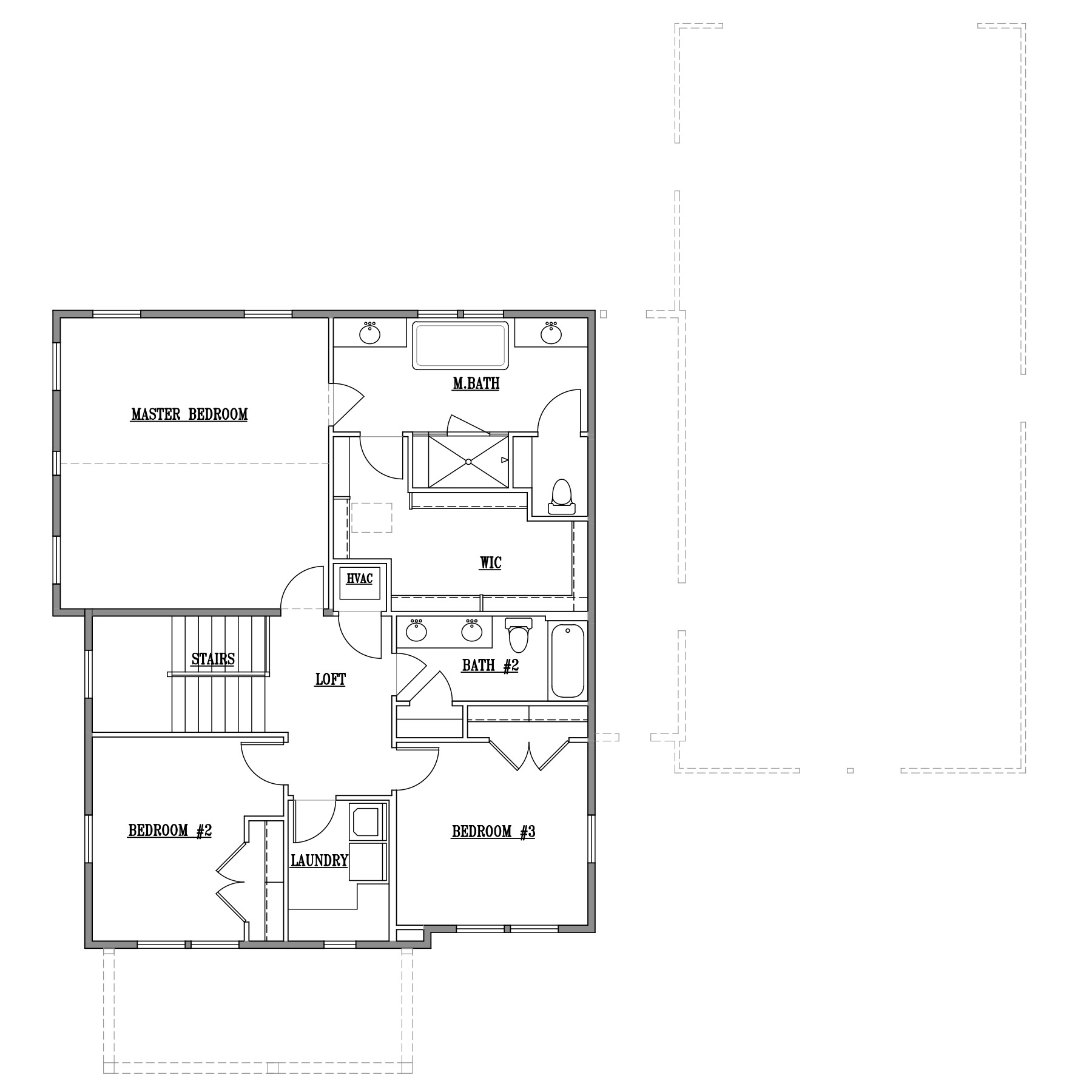
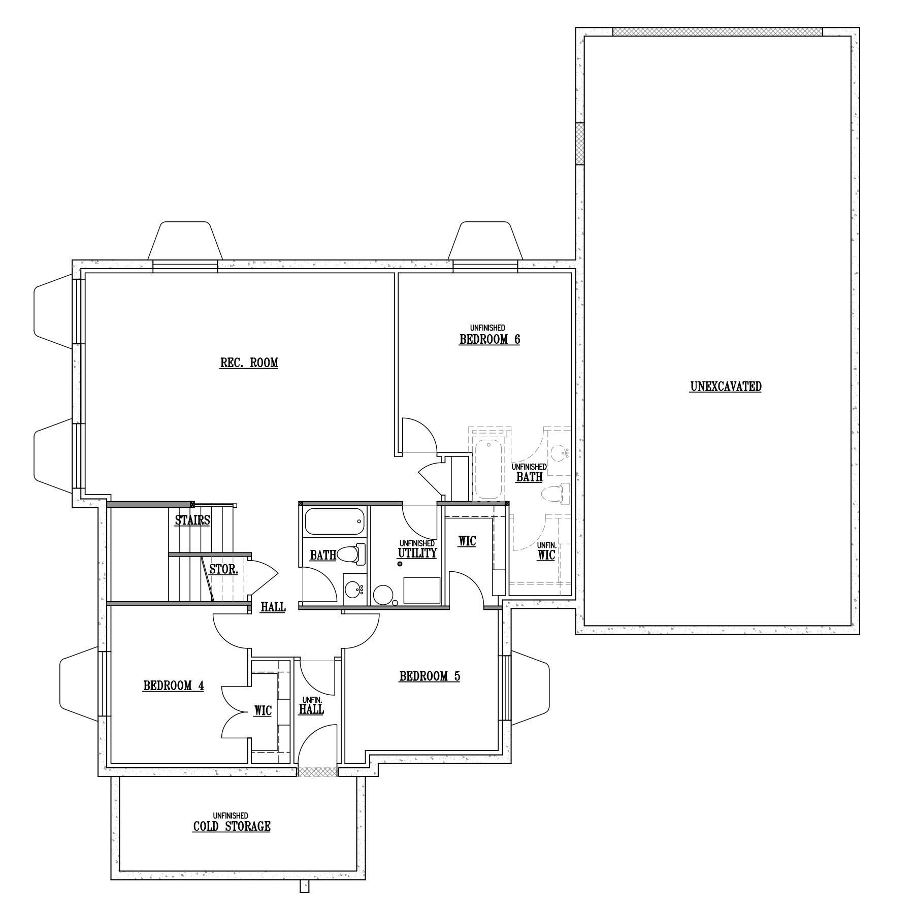
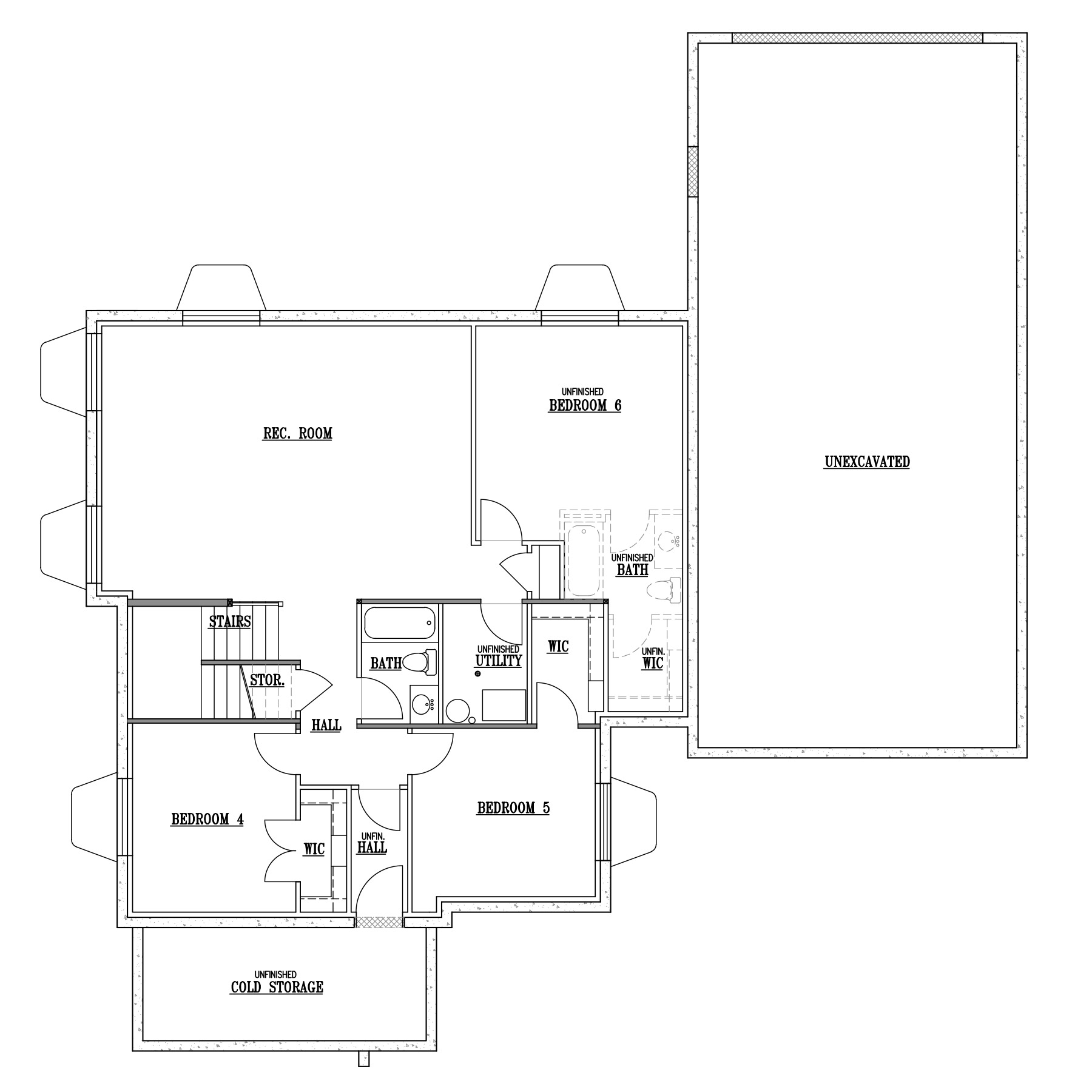
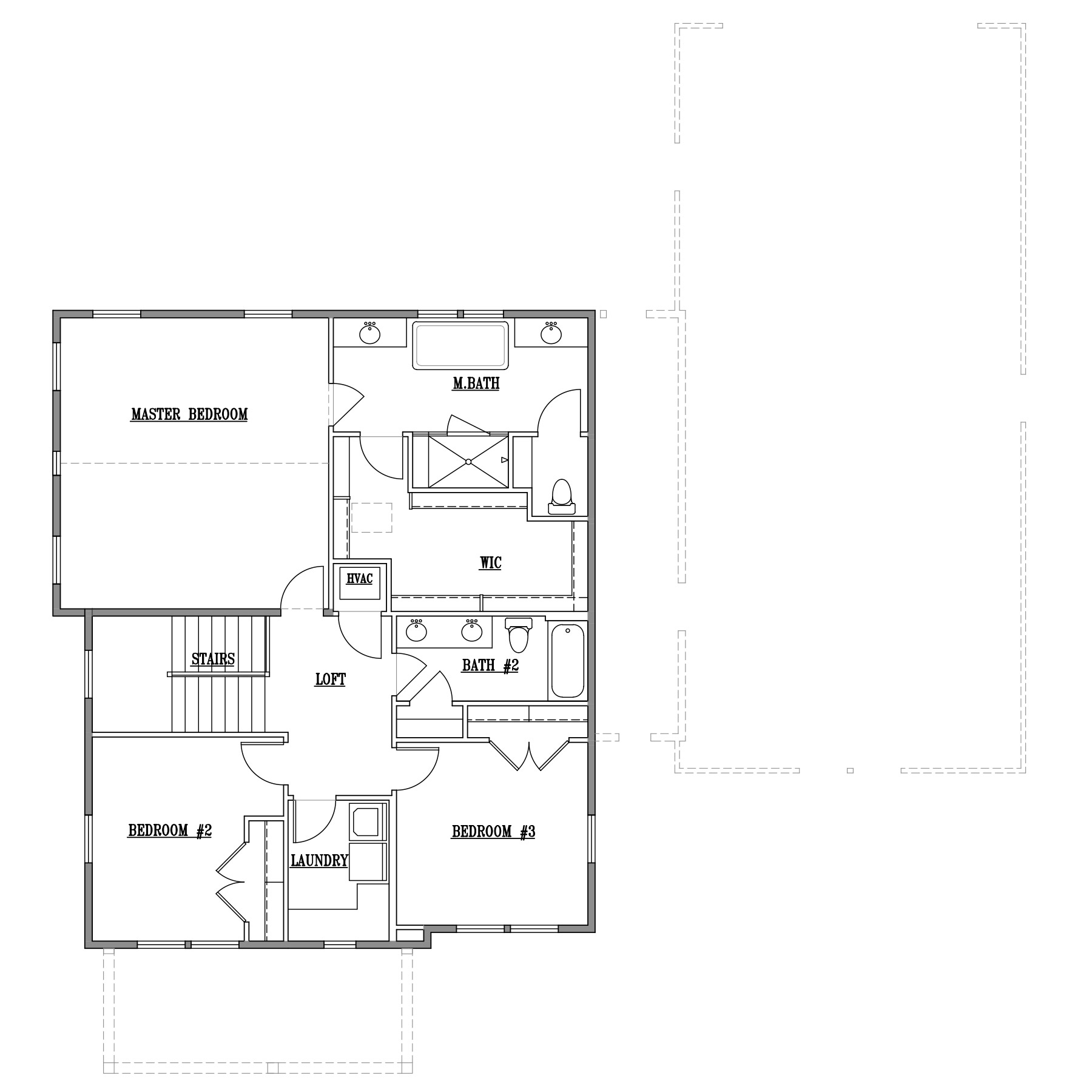
**The BIG Buydown Event! 2.875% (5.920% APR)* first year interest rate available for a limited time!!** The Arlington Farmhouse is the home you've been waiting for! Open concept kitchen, breakfast nook and great room, with the mudroom and powder bathroom just off the breakfast nook. Features 2 flex spaces off of the entry (think office, formal living room or formal dining room—the options are endless!). This home has a vaulted primary suite upstairs with separate vanities, free standing tub, luxurious shower and a huge walk-in closet. Also located upstairs is the laundry room, 2 bedrooms and a full bathroom. The basement is partially finished with 2 bedrooms, 1 bathroom and large recreation room.
Photo Gallery
Photos are of actual home (as of April 17th, 2026).
Exclusively Offered At
Cascade Village in Daybreak: The Traditional Collection

*First-year interest rate loan scenario: $1,030,000 purchase price and $618,000 loan amount on a 30-year fixed Conventional loan with a 3-2-1 Temporary Rate Buydown feature. In Year 1, the rate is reduced 3% to 2.875% with a monthly principal and interest payment of $2,564. In Year 2, the rate is reduced 2% to 3.875% with a payment of $2,906. In Year 3, the rate is reduced 1% to 4.875% with a payment of $3,271. Beginning in Year 4 and for the remainder of the loan, the rate is 5.875% with a 5.919% APR and a principal and interest payment of $3,656. This promotion is valid with a signed offer on or before April 30, 2026, and financing must be obtained through Team 101 at Northpointe Bank. Rates shown were retrieved on Mar 27, 2026, and reflect a builder-paid interest rate buydown, based on a qualifying credit score of 760. Buyers must qualify at the fully indexed rate, not the introductory buydown rate. All loans are subject to credit review and approval. Rates, terms, and promotional offers are subject to change or discontinuation without notice. This is not a commitment to lend. Northpointe Bank is an Equal Housing Lender.
Explore More Quick Move-Ins From Rainey Homes
*Prices subject to change at any time
VIP List Sign Up
Interested in this and other Rainey Homes? Sign up for our VIP list and stay connected with us.
This website is secure
Your information is safe with us!
Sales Agent
Doug Schwartz
I've been proudly representing Rainey Homes for over 10 years. Let's chat about your next home.
AIM Realty, Inc.
Preferred Lender:

Closing cost incentives may be available for this home when you use our preferred lender.
(801) 810-6503 | www.Team101.com | West Jordan, UT 84081 | Member FDIC |



































