3,887
Square Ft.
2,786
Finished
4
Beds
3
Baths
3
Garage
0.10
Acres
Sales Agent:

Taylor Winget
801-680-5386
taylor.winget@raineyhomes.com
Quick Move-In @ Terraine
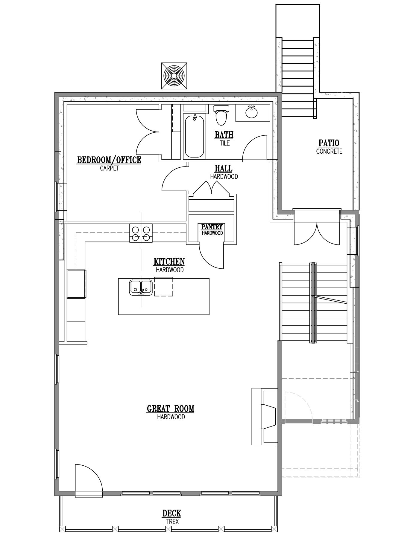
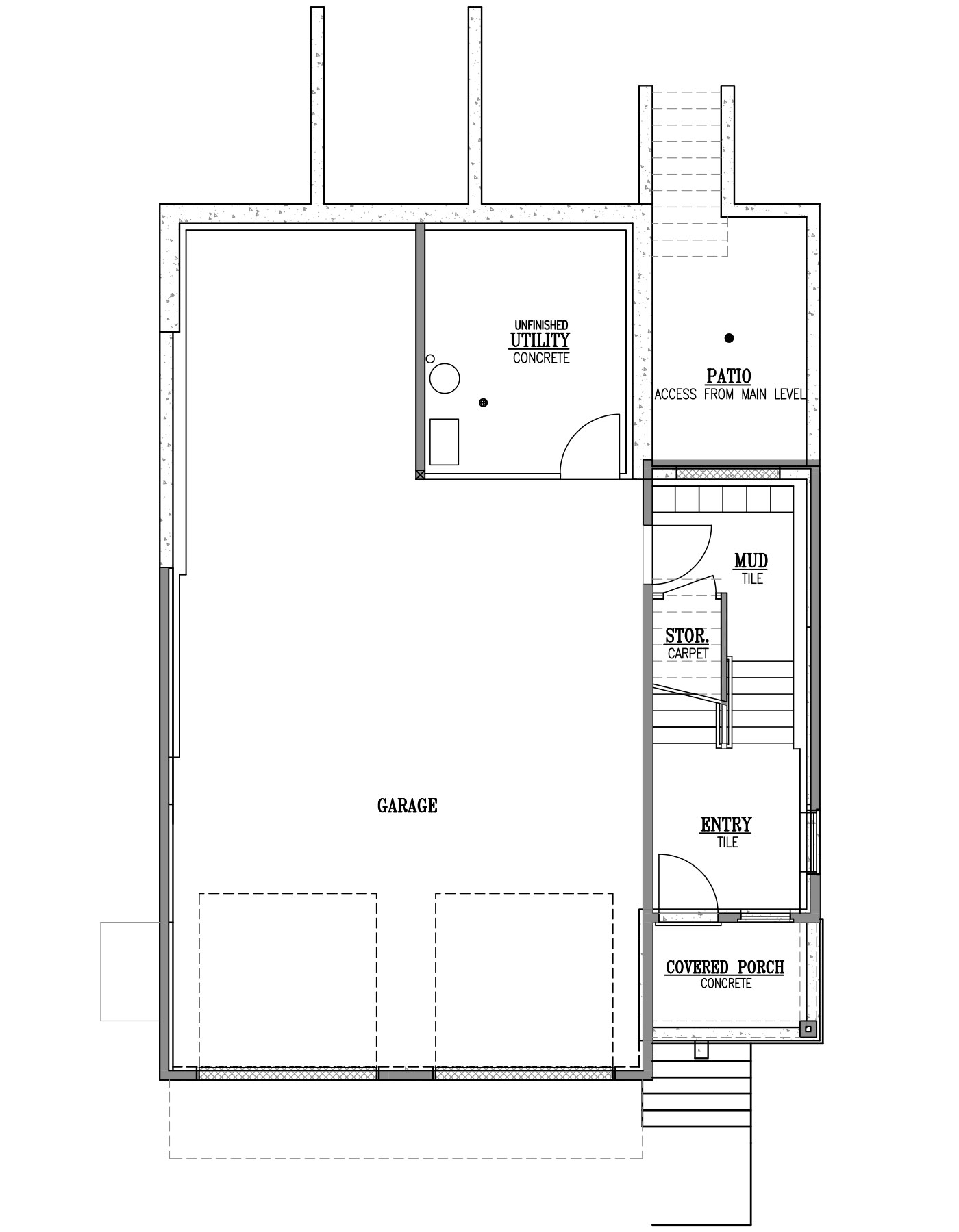
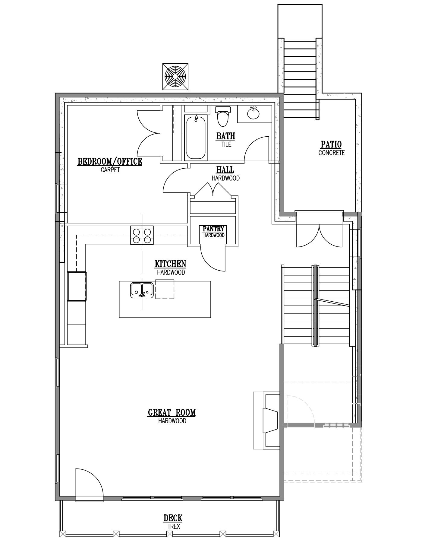
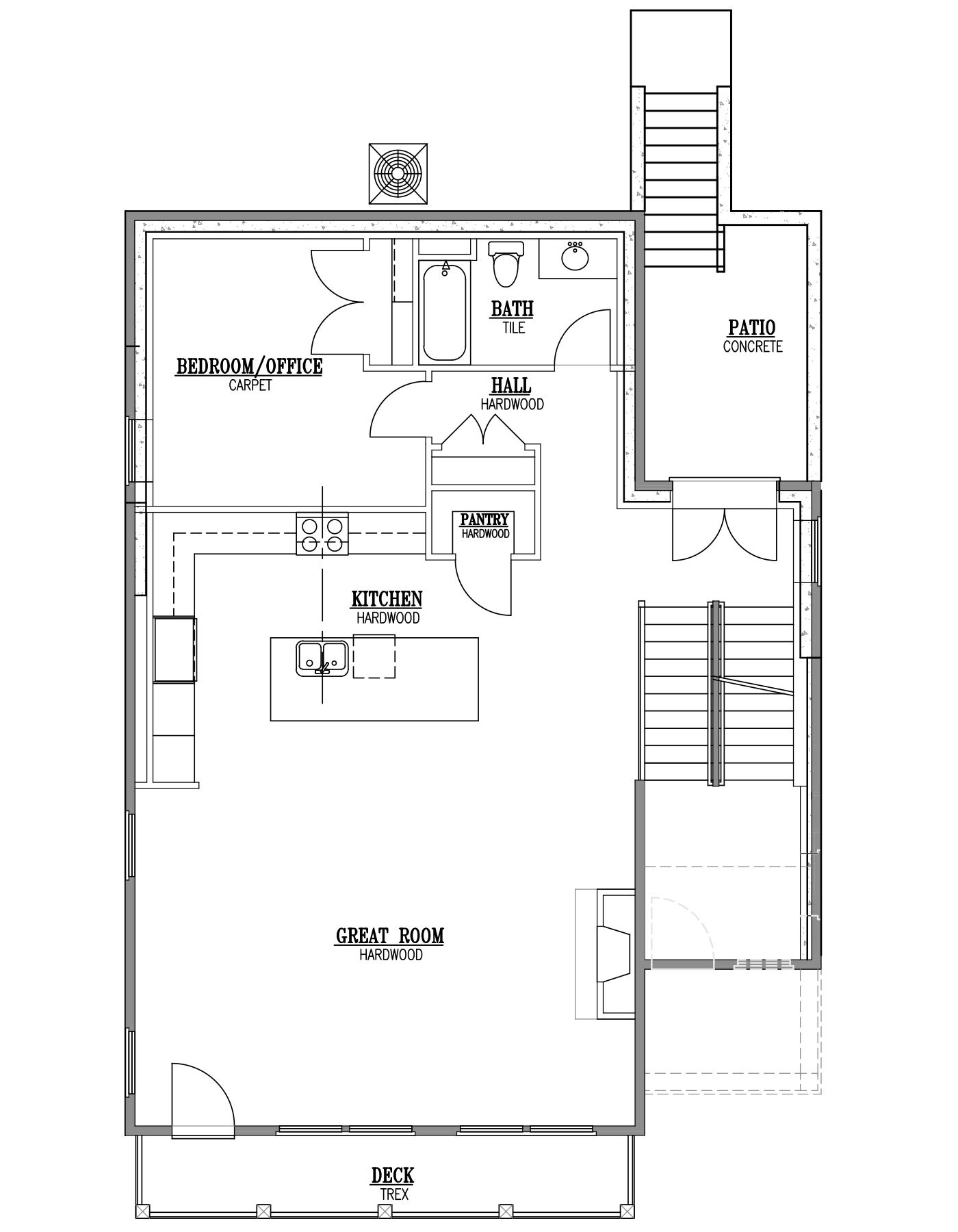
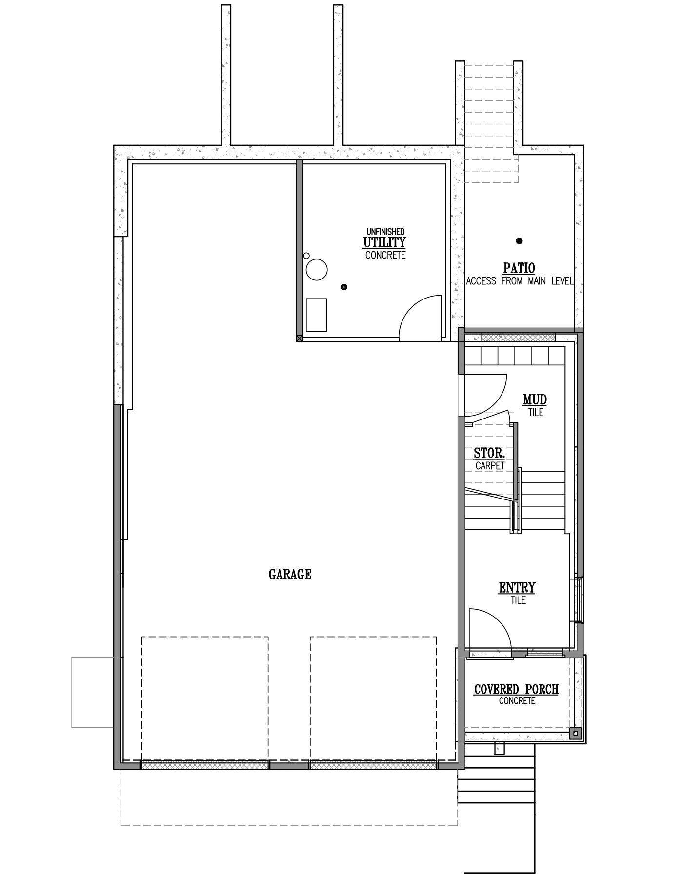
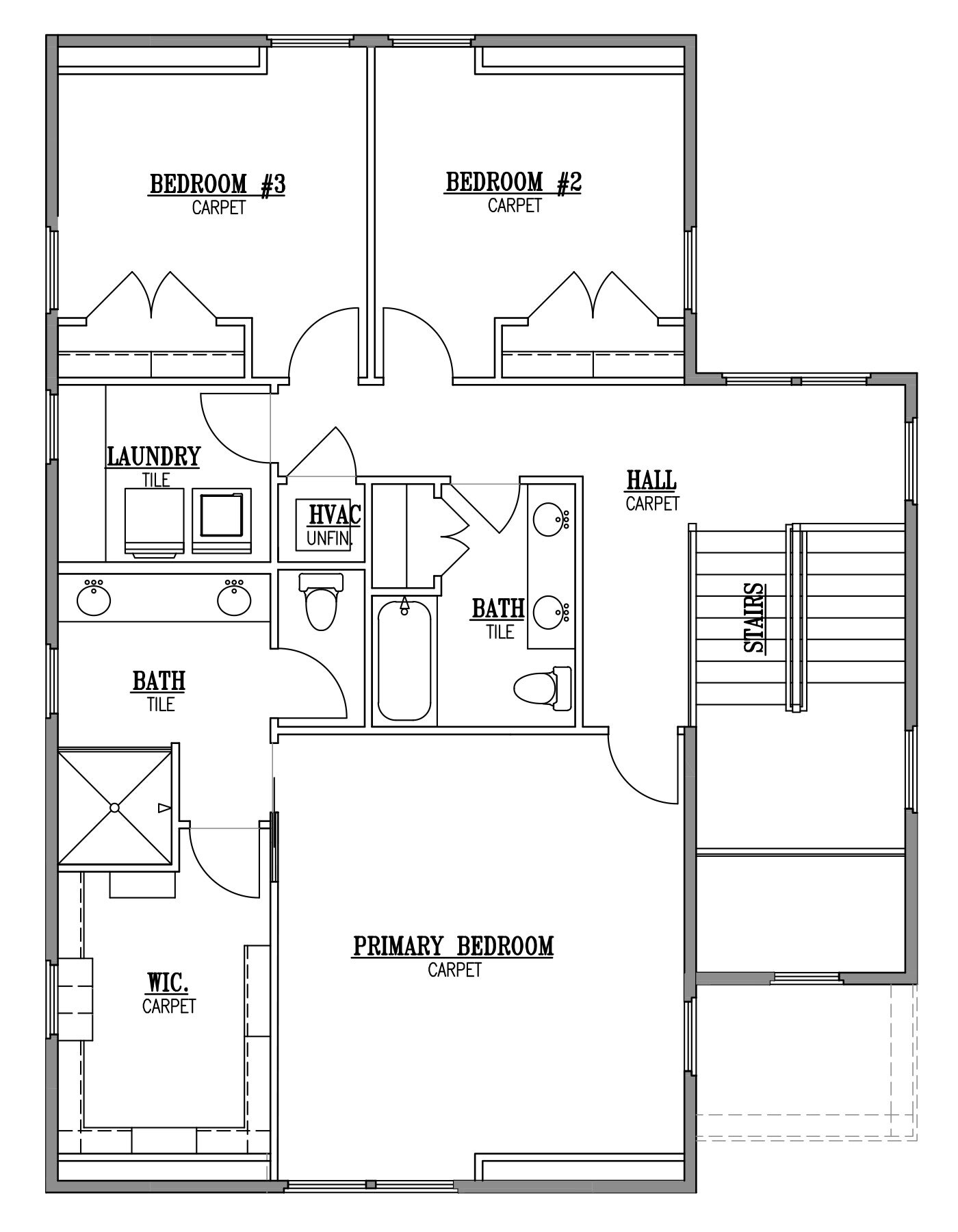
**The BIG Buydown Event! 2.875% (5.926% APR)* first year interest rate available for a limited time!!** Introducing the Frisco at Terraine — a thoughtfully crafted home that blends smart design with modern style in one of West Jordan’s most desirable new neighborhoods. Part of the exclusive Orion Collection, this split-level residence offers a flexible layout that’s perfect for both everyday living and entertaining. The heart of the home is its open-concept main living area, where a gourmet kitchen with a large pantry flows seamlessly into the living room and opens to an expansive deck — great for indoor-outdoor living. The upper-level owner’s suite is a tranquil retreat with a massive walk-in closet, while the main floor features an additional bedroom or office space with easy access to a full bath, adding versatility to your lifestyle. A drive-under three-car tandem garage and a convenient mudroom make daily routines easier, while thoughtful finishes throughout lend both comfort and style. The Frisco delivers a perfect balance of function, flexibility, and contemporary living in Terraine’s vibrant community.
Photo Gallery
Photos are of actual home (as of April 5th, 2026).
Exclusively Offered At
Terraine: West Jordan’s Premiere Master-Planned Community

*First-year interest rate loan scenario: $850,000 purchase price and $510,000 loan amount on a 30-year fixed Conventional loan with a 3-2-1 Temporary Rate Buydown feature. In Year 1, the rate is reduced 3% to 2.875% with a monthly principal and interest payment of $2,116. In Year 2, the rate is reduced 2% to 3.875% with a payment of $2,398. In Year 3, the rate is reduced 1% to 4.875% with a payment of $2,699. Beginning in Year 4 and for the remainder of the loan, the rate is 5.875% with a 5.926% APR and a principal and interest payment of $3,017. This promotion is valid with a signed offer on or before April 30, 2026, and financing must be obtained through Team 101 at Northpointe Bank. Rates shown were retrieved on Mar 27, 2026, and reflect a builder-paid interest rate buydown, based on a qualifying credit score of 760. Buyers must qualify at the fully indexed rate, not the introductory buydown rate. All loans are subject to credit review and approval. Rates, terms, and promotional offers are subject to change or discontinuation without notice. This is not a commitment to lend. Northpointe Bank is an Equal Housing Lender.
Explore More Quick Move-Ins From Rainey Homes
*Prices subject to change at any time
VIP List Sign Up
Interested in this and other Rainey Homes? Sign up for our VIP list and stay connected with us.
This website is secure
Your information is safe with us!
Sales Agent
Taylor Winget
I'm proud to represent Rainey Homes, where quality and design meet. Let’s find your next home!
AIM Realty, Inc.
Preferred Lender:

Closing cost incentives may be available for this home when you use our preferred lender.
(801) 810-6503 | www.Team101.com | West Jordan, UT 84081 | Member FDIC |




























