5,315
Square Ft.
4,731
Finished
5
Beds
3½
Baths
3
Garage
0.34
Acres
Sales Agent:

Doug Schwartz
480-363-8928
doug.schwartz@raineyhomes.com
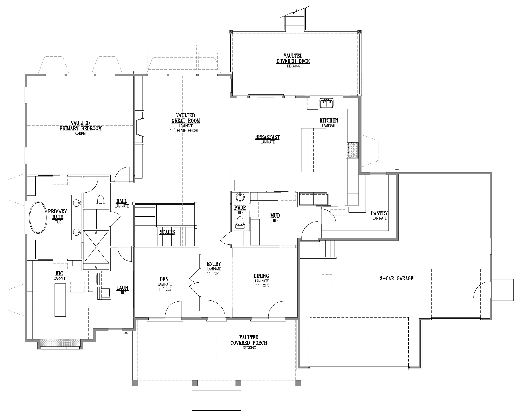
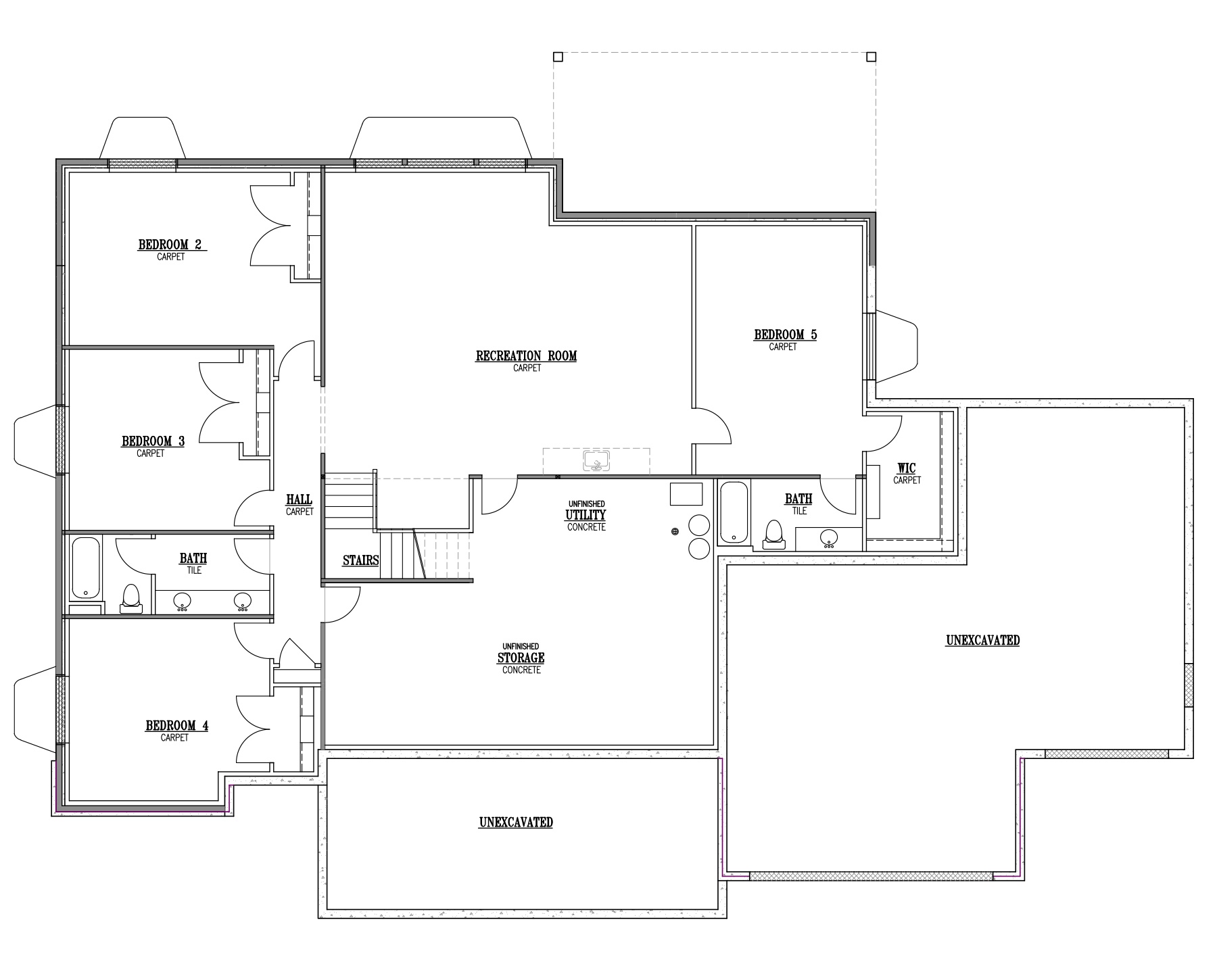
The Millcreek Farmhouse II Custom Home at Miller Meadows
Estimated Completion: Early 2026
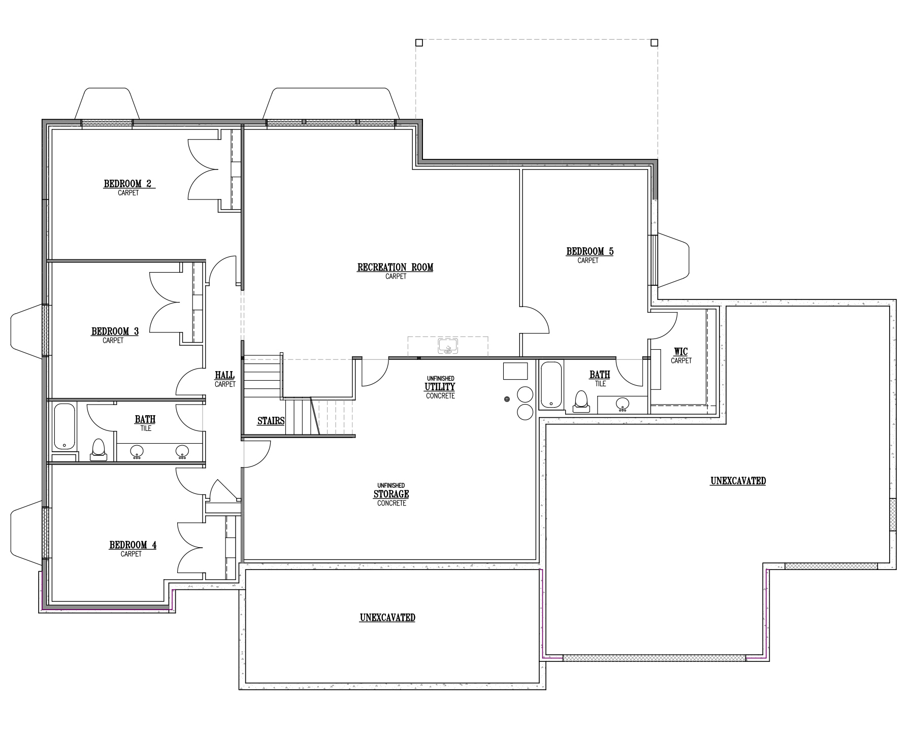
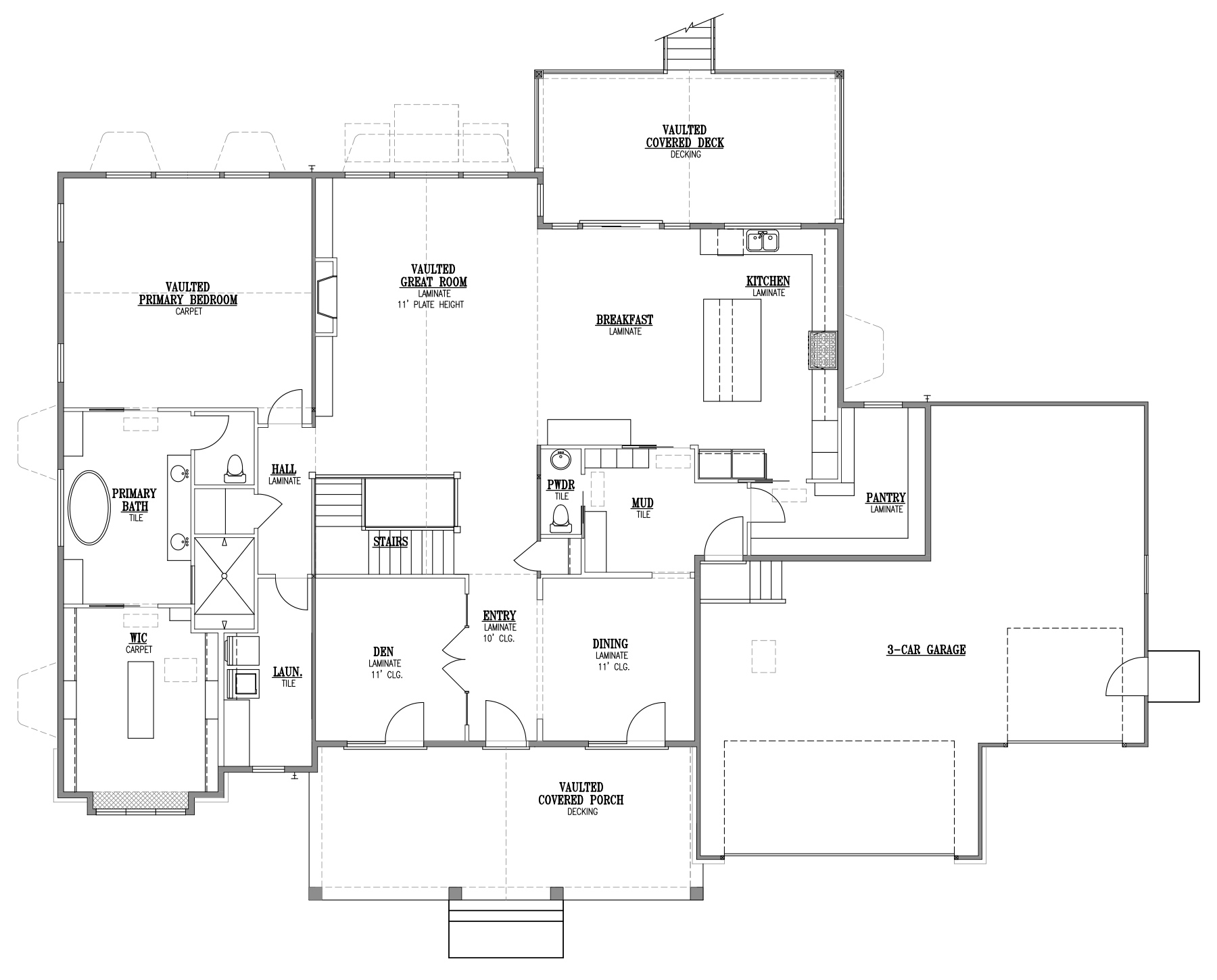
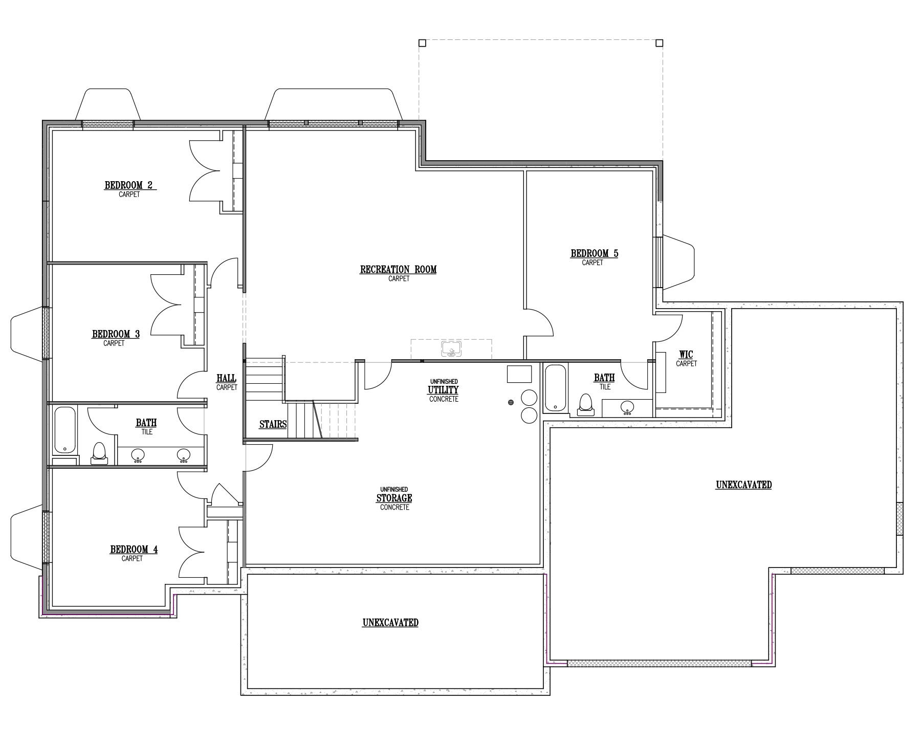
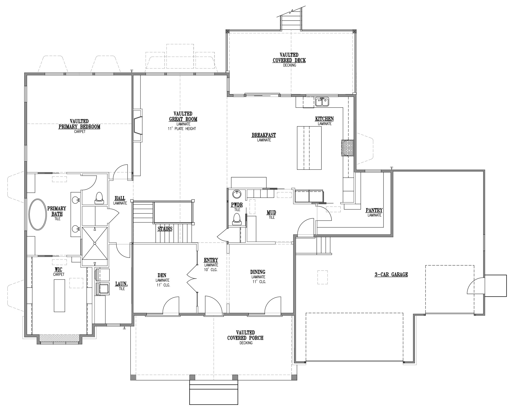
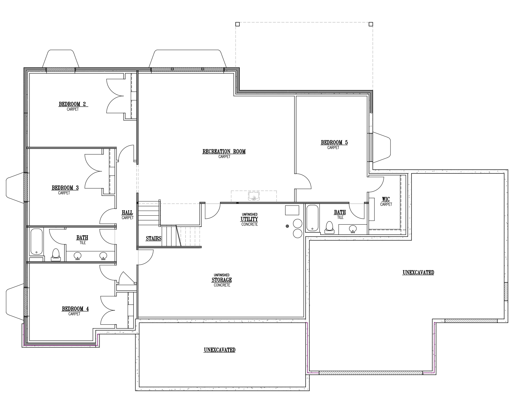
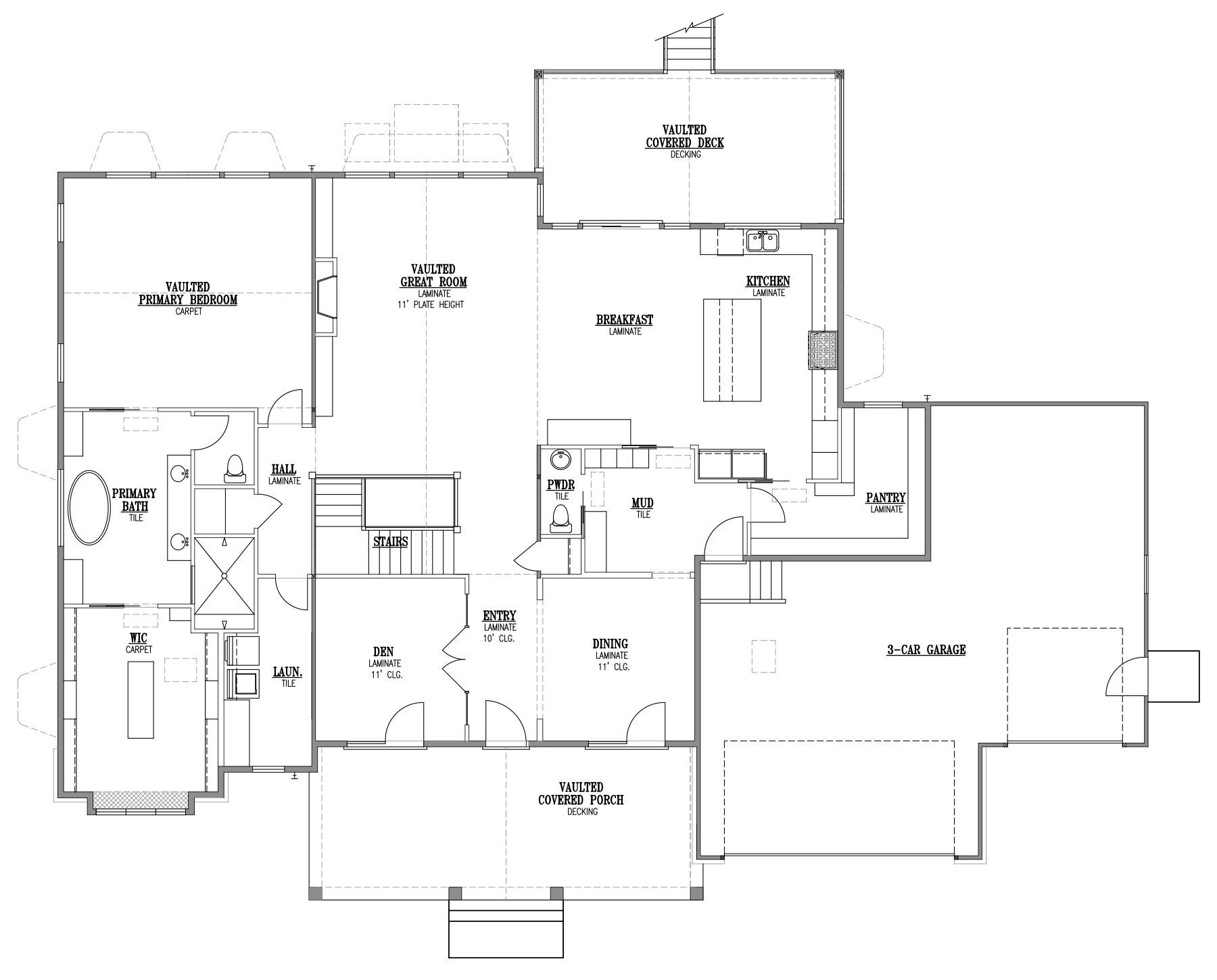
The Millcreek Farmhouse II by Rainey Homes in Miller Meadows combines luxury, space, and thoughtful design. A vaulted covered porch welcomes you into an elegant entry with an 11' ceiling den and dining room. The open vaulted great room flows into a gourmet kitchen with high-end appliances and an XL pantry, while the deluxe owner’s suite offers a vaulted bedroom and a huge walk-in closet with a storage island. Enjoy 685 sq. ft. of vaulted covered outdoor living, plus a partially finished basement with four bedrooms, two baths, a rec room, and ample storage.
Photo Gallery
Photos are of actual home (as of April 5th, 2026).
Explore More Quick Move-Ins From Rainey Homes
*Prices subject to change at any time
VIP List Sign Up
Interested in this and other Rainey Homes? Sign up for our VIP list and stay connected with us.
This website is secure
Your information is safe with us!
Sales Agent
Doug Schwartz
I've been proudly representing Rainey Homes for over 10 years. Let's chat about your next home.
AIM Realty, Inc.
Preferred Lender:

Closing cost incentives may be available for this home when you use our preferred lender.
(801) 810-6503 | www.Team101.com | West Jordan, UT 84081 | Member FDIC |































