4,864
Square Ft.
4,520
Finished
5
Beds
3½
Baths
4
Garage
0.17
Acres
Sales Agent:

Kaylee Thompson
801-675-0960
kaylee.thompson@raineyhomes.com
Coming Soon to Beacon Pointe
Estimated Completion: Early 2026
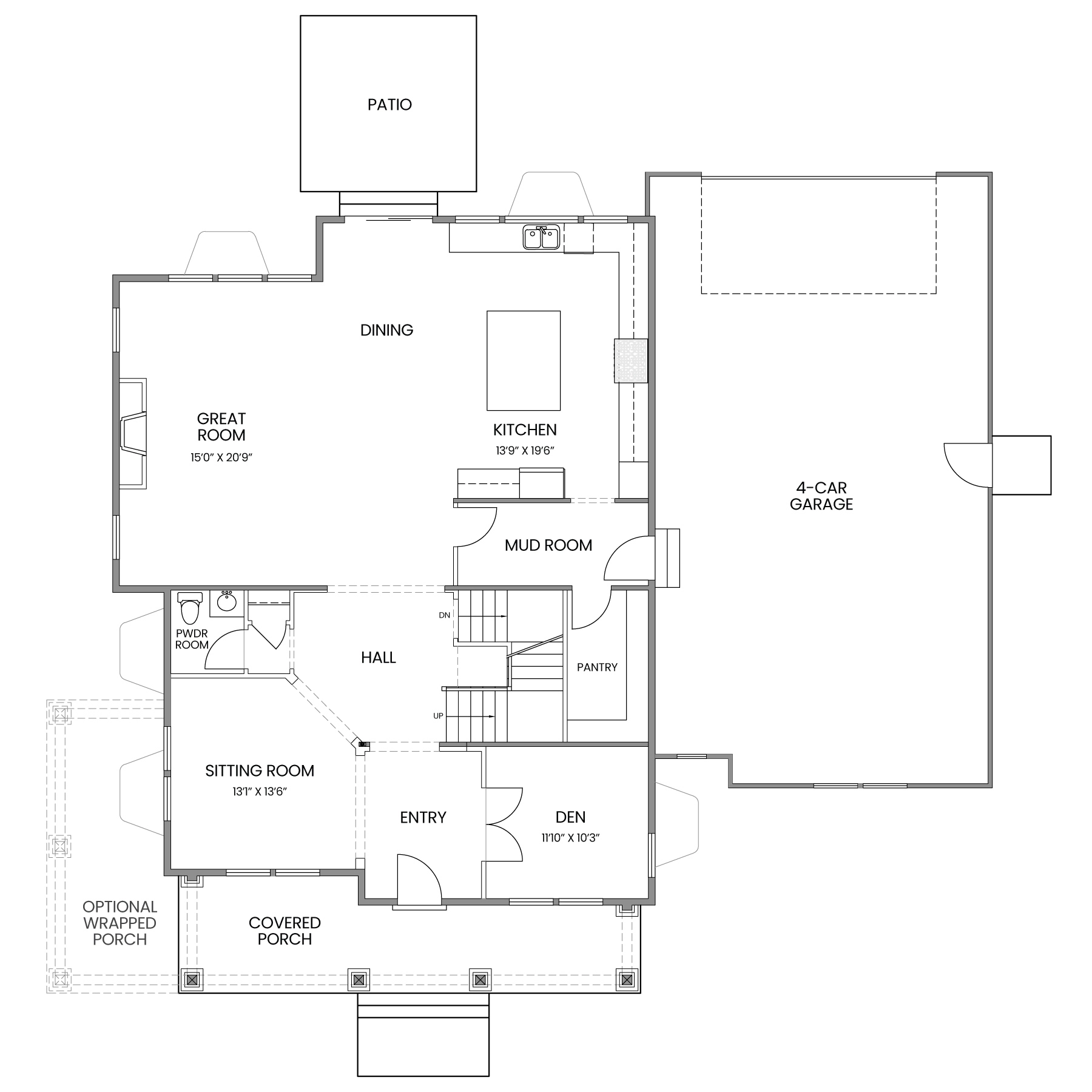
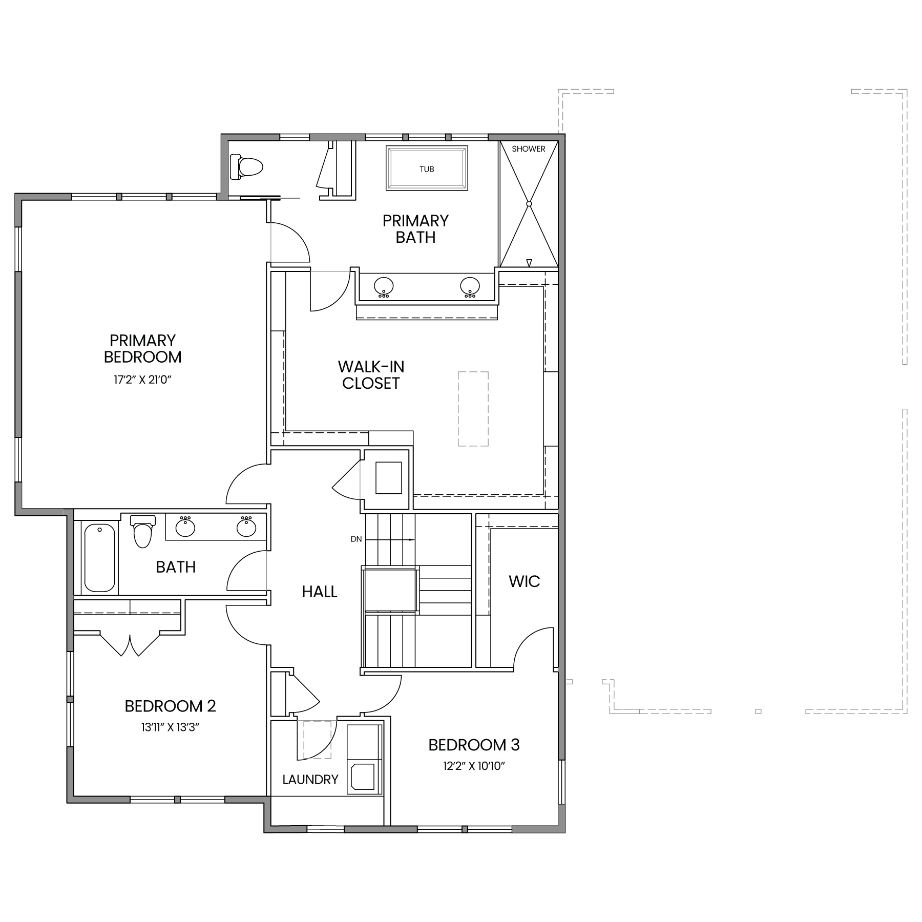
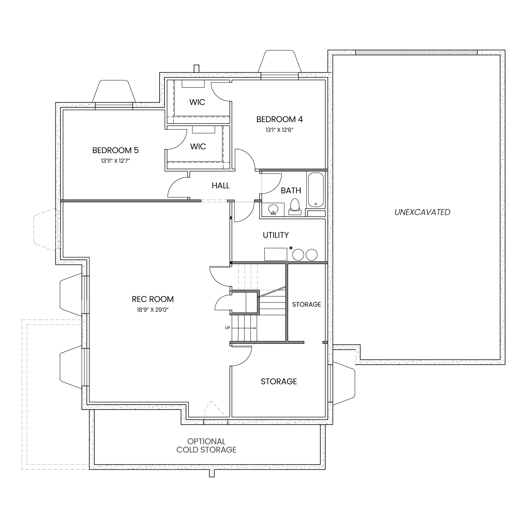
Introducing the Ridgefield Farmhouse at Beacon Pointe—where timeless design meets everyday functionality in one of Saratoga Springs’ most desirable communities. This thoughtfully crafted home features a spacious open-concept layout that seamlessly connects the kitchen, great room, and dining area, making it perfect for family life and entertaining. Just off the entry, a cozy sitting room and separate flex space offer endless possibilities for a home office, playroom, or den. The luxurious owner’s suite includes a beautifully finished bath and an oversized walk-in closet. A front-load tandem 4-car garage with a side door provides plenty of room for vehicles, storage, or a home gym, while the expansive covered front porch adds both charm and outdoor living space. With its flexible layout and elevated details, the Ridgefield Farmhouse delivers comfort and character in every square foot.
Explore More Beacon Pointe Available Homes
*Prices subject to change at any time
VIP List Sign Up
Interested in this and other Rainey Homes? Sign up for our VIP list and stay connected with us.
This website is secure
Your information is safe with us!
Sales Agent
Kaylee Thompson
I've been proudly representing Rainey Homes for over 6 years. Let's chat about your next home.
AIM Realty, Inc.
Preferred Lender:

Closing cost incentives may be available for this home when you use our preferred lender.
(801) 810-6503 | www.Team101.com | West Jordan, UT 84081 | Member FDIC |







