6,895
Square Ft.
6,774
Finished
6
Beds
5½
Baths
3
Garage
.33
Acres
Sales Agent:

Doug Schwartz
480-363-8928
doug.schwartz@raineyhomes.com
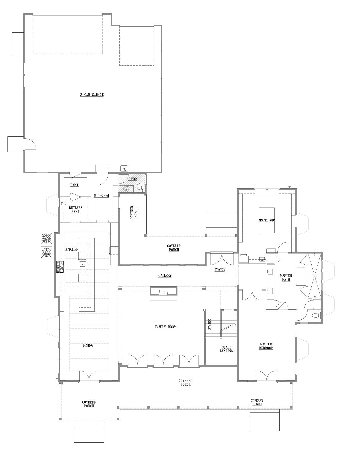
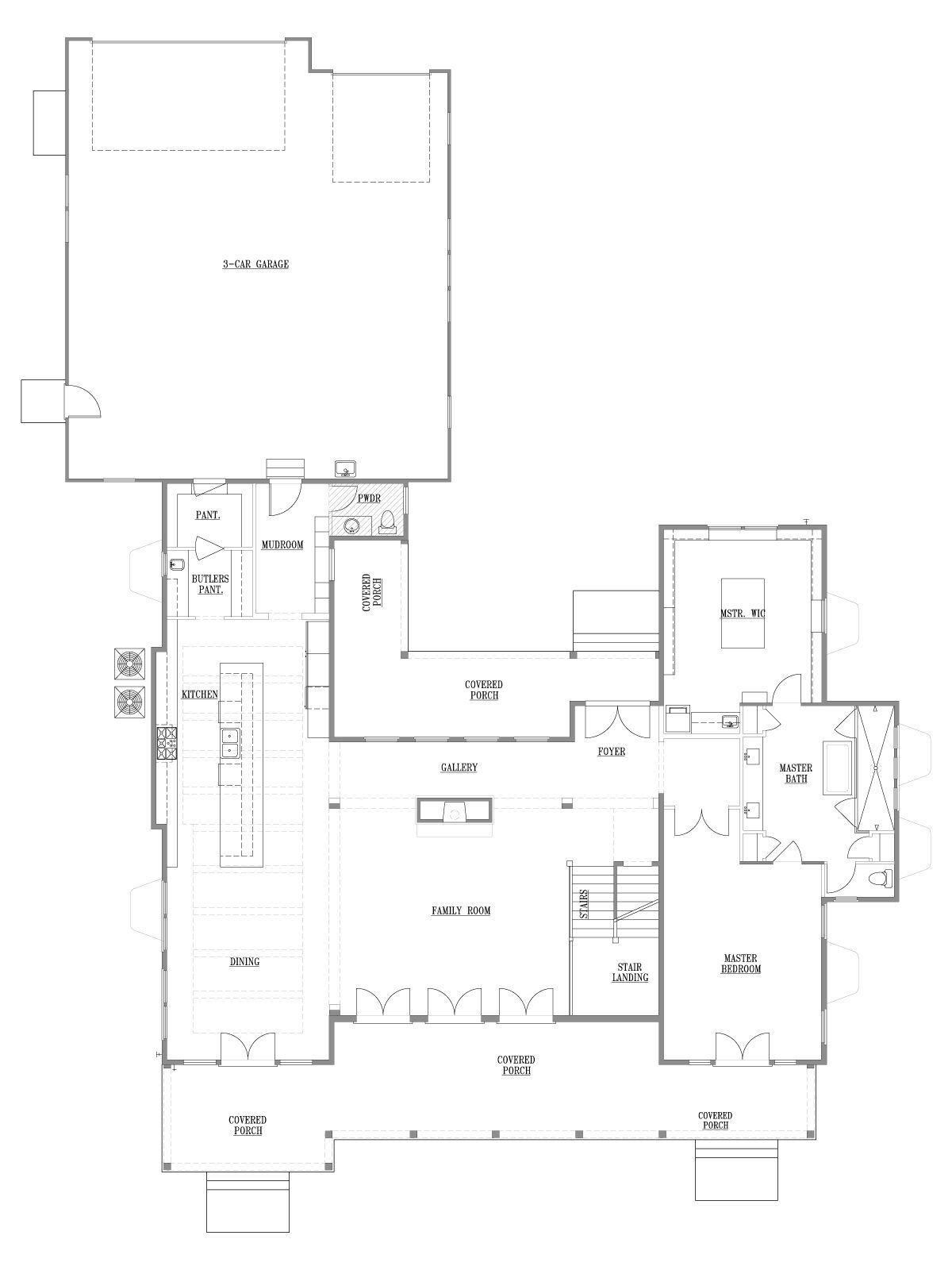
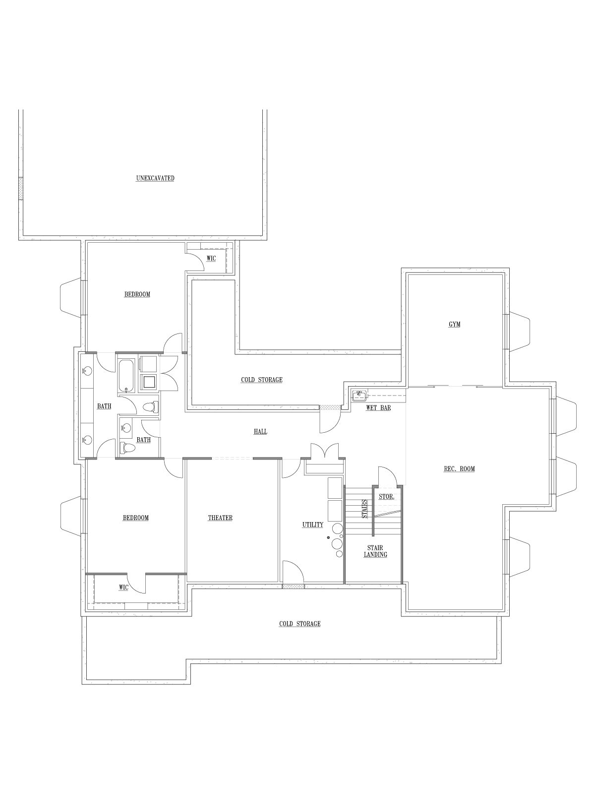
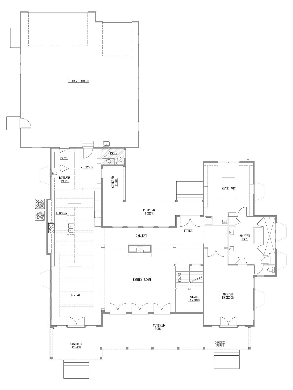
The Courtyard: Island Living at Daybreak
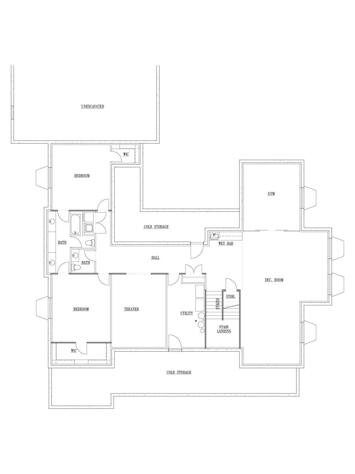
This luxurious home on the Island at Daybreak offers breathtaking lakefront views. The two-story great room is an awe-inspiring space, with a magnificent floor-to-ceiling brick fireplace that creates a warm and inviting atmosphere. The kitchen, with its spacious kitchen island, is both functional and stylish, including a convenient hidden pantry for additional storage. The master suite, located on the main floor, boasts a private patio with stunning lake views, as well as a large walk-in closet with a laundry area. The basement is a true entertainer's paradise, complete with a wet bar, a spacious rec room, a movie theater, and a gym for fitness enthusiasts. This home is adorned with elegant touches throughout, making it a one-of-a-kind, sophisticated residence.
Get In Touch
Interested in building a home like this? Get in touch with us today to talk through the process of building a luxury home with Rainey.
This website is secure
Your information is safe with us!
Sales Agent
Doug Schwartz
I've been proudly representing Rainey Homes for over 10 years. Let's chat about your next home.
AIM Realty, Inc.
Preferred Lender:

Closing cost incentives may be available for this home when you use our preferred lender.
(801) 810-6503 | www.Team101.com | West Jordan, UT 84081 | Member FDIC |













































