4,930
Square Ft.
4,865
Finished
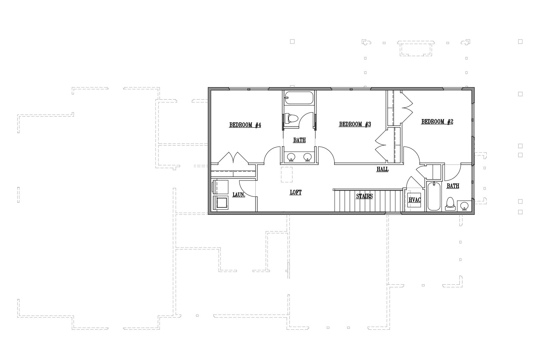
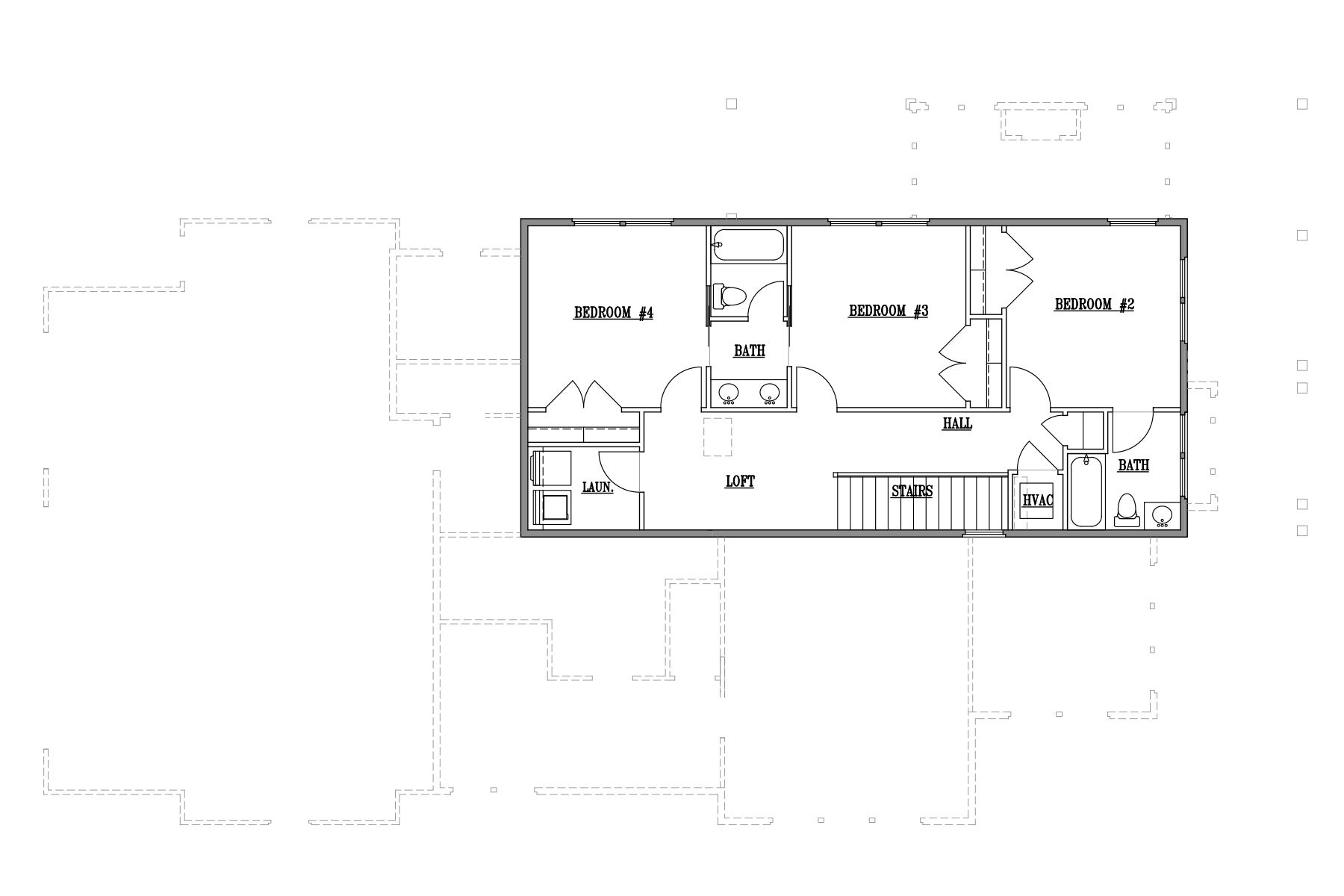
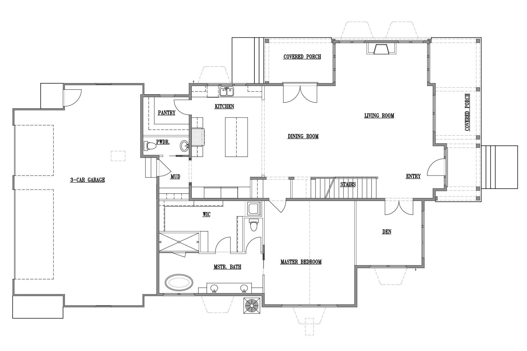
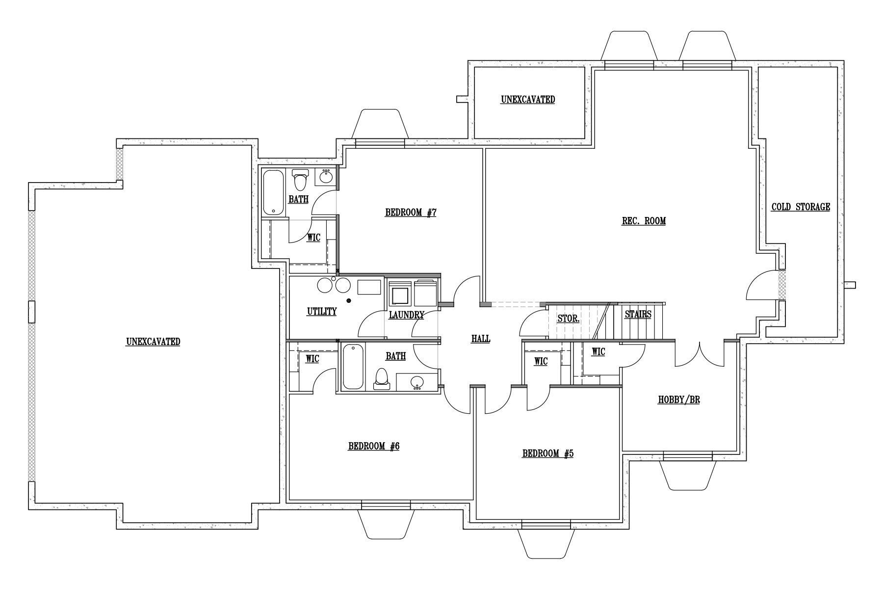
7
Beds
5½
Baths
3
Garage
0.19
Acres
Sales Agent:

Kaylee Thompson
801-675-0960
kaylee.thompson@raineyhomes.com
Model Home at Terraine in West Jordan
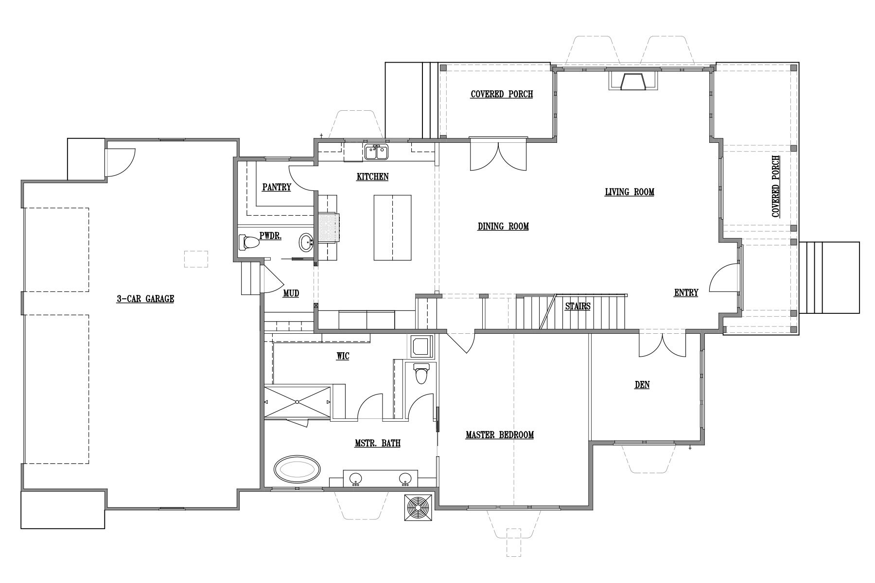
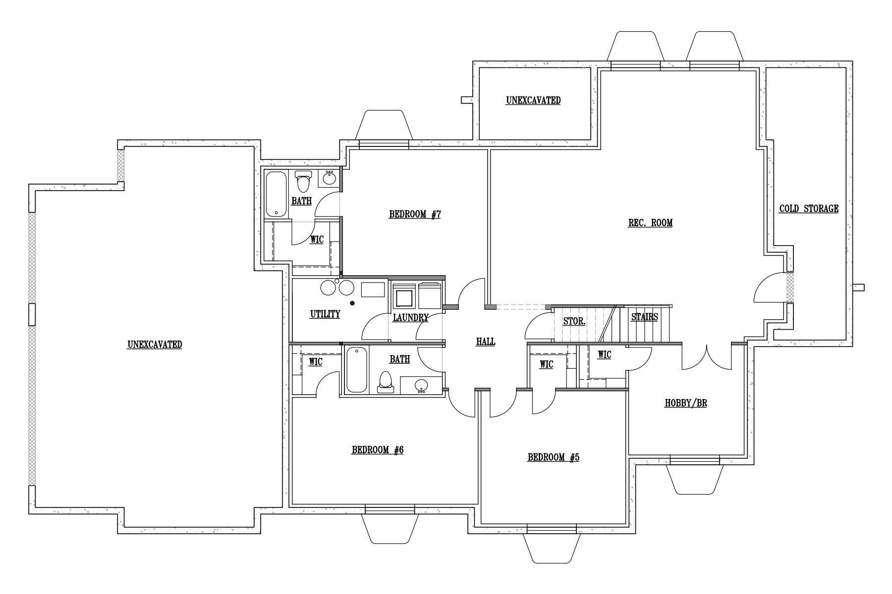
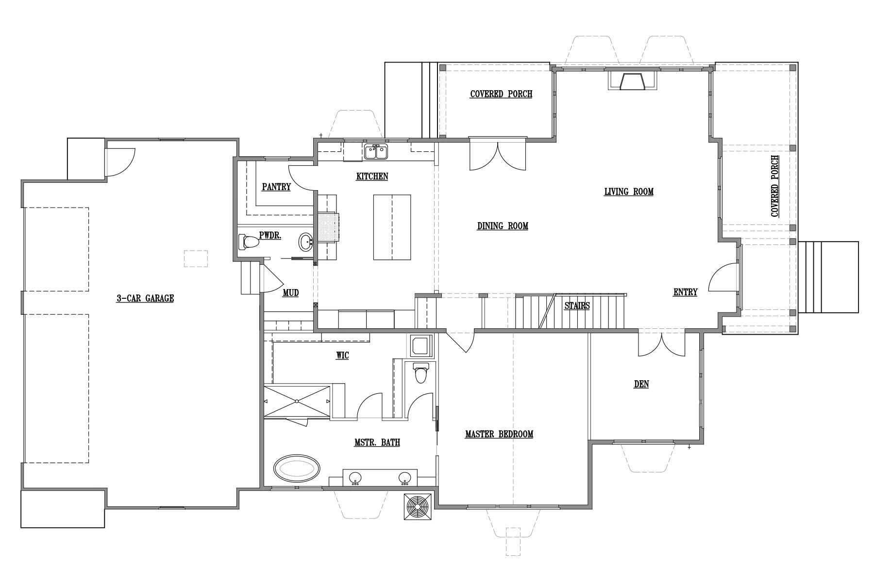
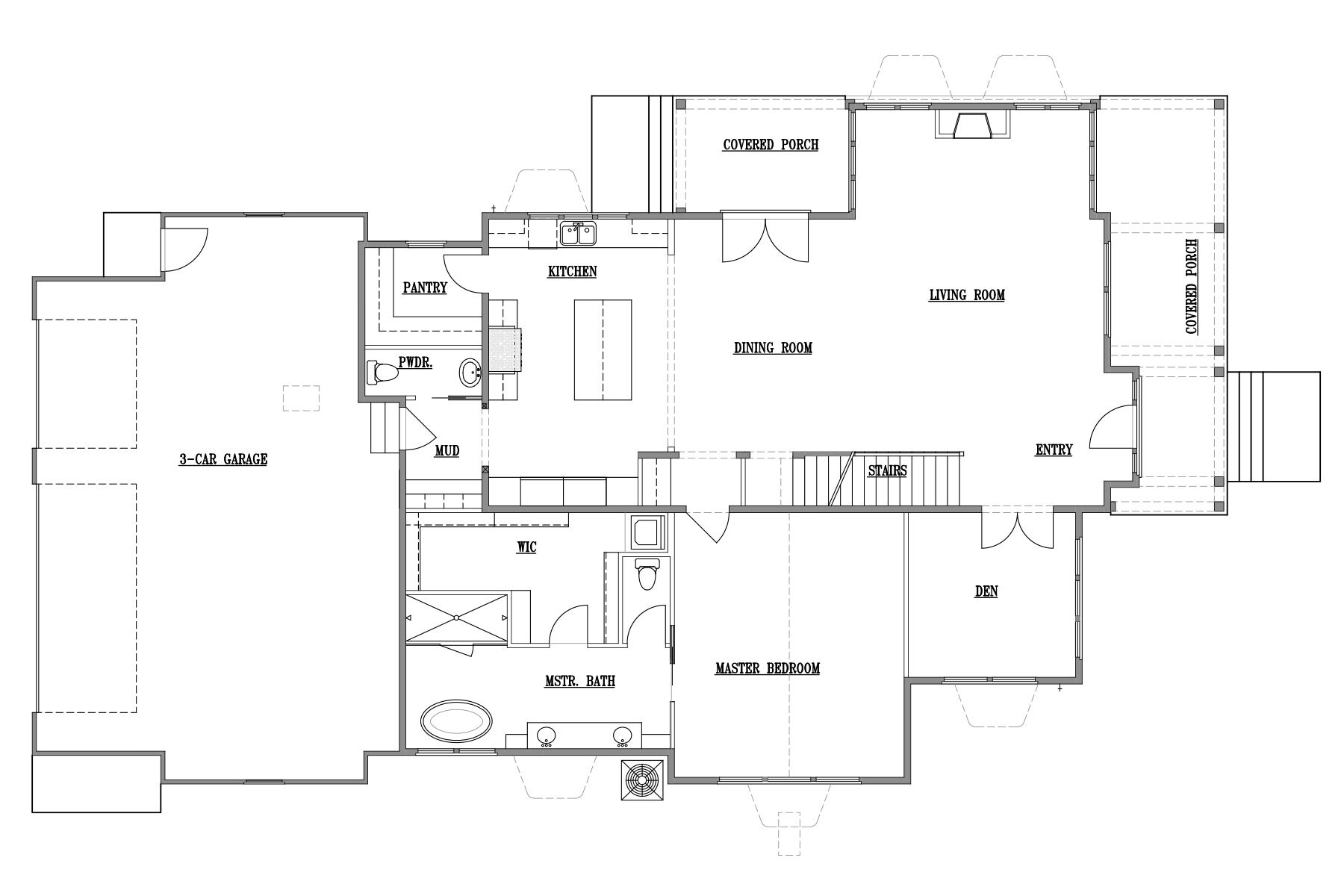
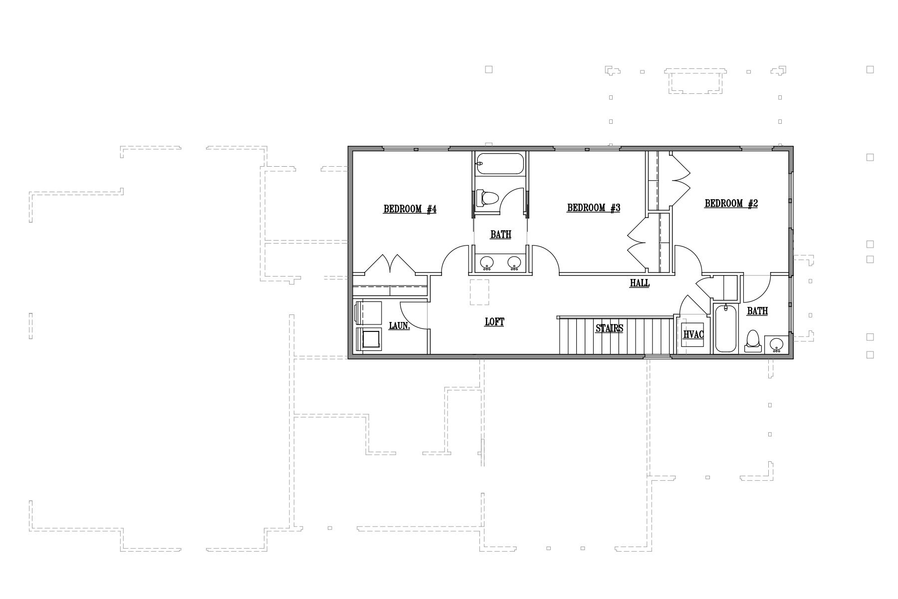
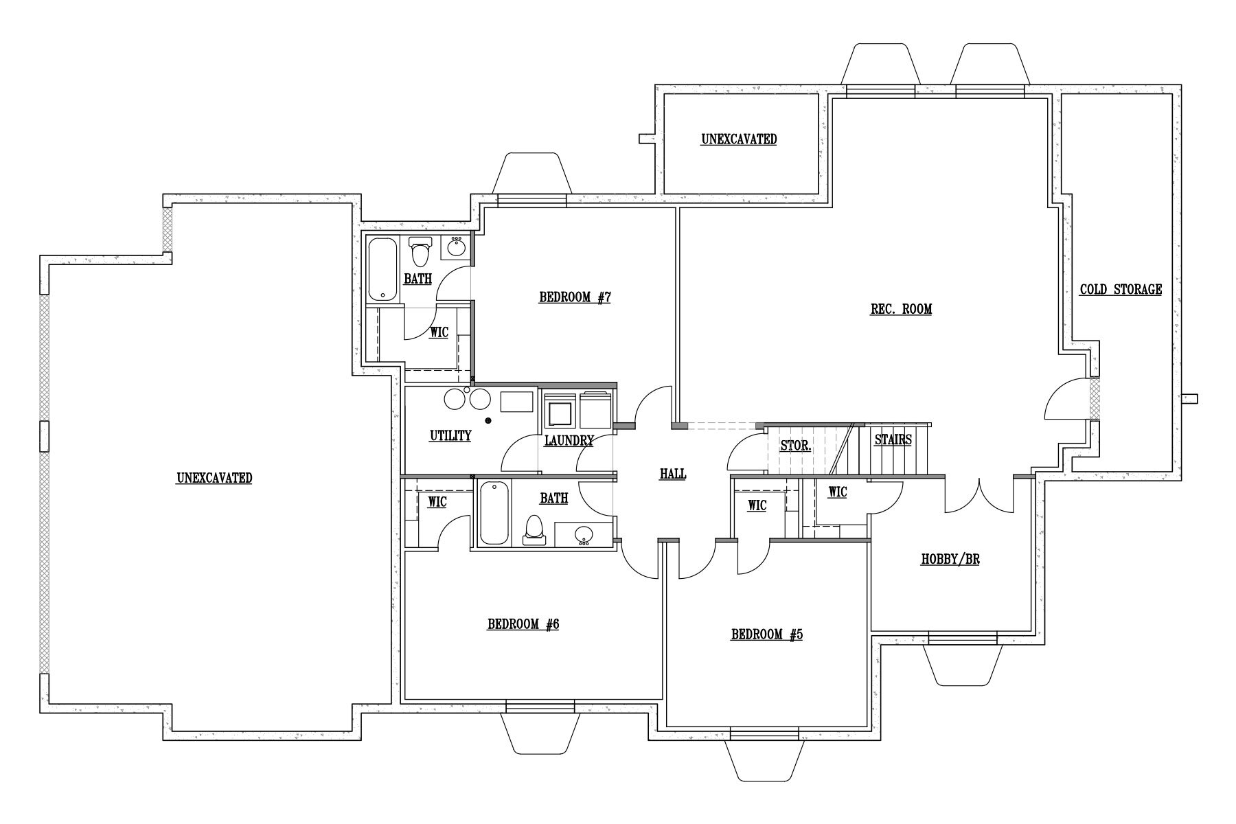
The Goldfield blends modern design with natural elegance, offering a vaulted-ceiling owner’s suite and two covered porches to take in breathtaking mountain views. A main-level den with double doors adds flexibility, whether as a home office or quiet retreat. The fully finished basement provides incredible versatility with a large rec room, three bedrooms, two full baths, cold storage, and a hobby room that could serve as an additional bedroom. Thoughtfully crafted with eco-friendly finishes and exceptional attention to detail, the Goldfield is designed for comfort, functionality, and a seamless connection to its surroundings.
Virtual Tour
Take the professional 360 degree virtual tour of our Goldfield Farmhouse floor plan.
Get In Touch
Interested in building a home like this? Get in touch with us today to talk through the process of building a luxury home with Rainey.
This website is secure
Your information is safe with us!
Sales Agent
Kaylee Thompson
I've been proudly representing Rainey Homes for over 6 years. Let's chat about your next home.
AIM Realty, Inc.
Preferred Lender:

Closing cost incentives may be available for this home when you use our preferred lender.
(801) 810-6503 | www.Team101.com | West Jordan, UT 84081 | Member FDIC |











































