4,930
Square Ft.
4,865
Finished
7
Beds
5½
Baths
3
Garage
0.19
Acres
Sales Agent:

Kaylee Thompson
801-675-0960
kaylee.thompson@raineyhomes.com
Model Home at Terraine in West Jordan
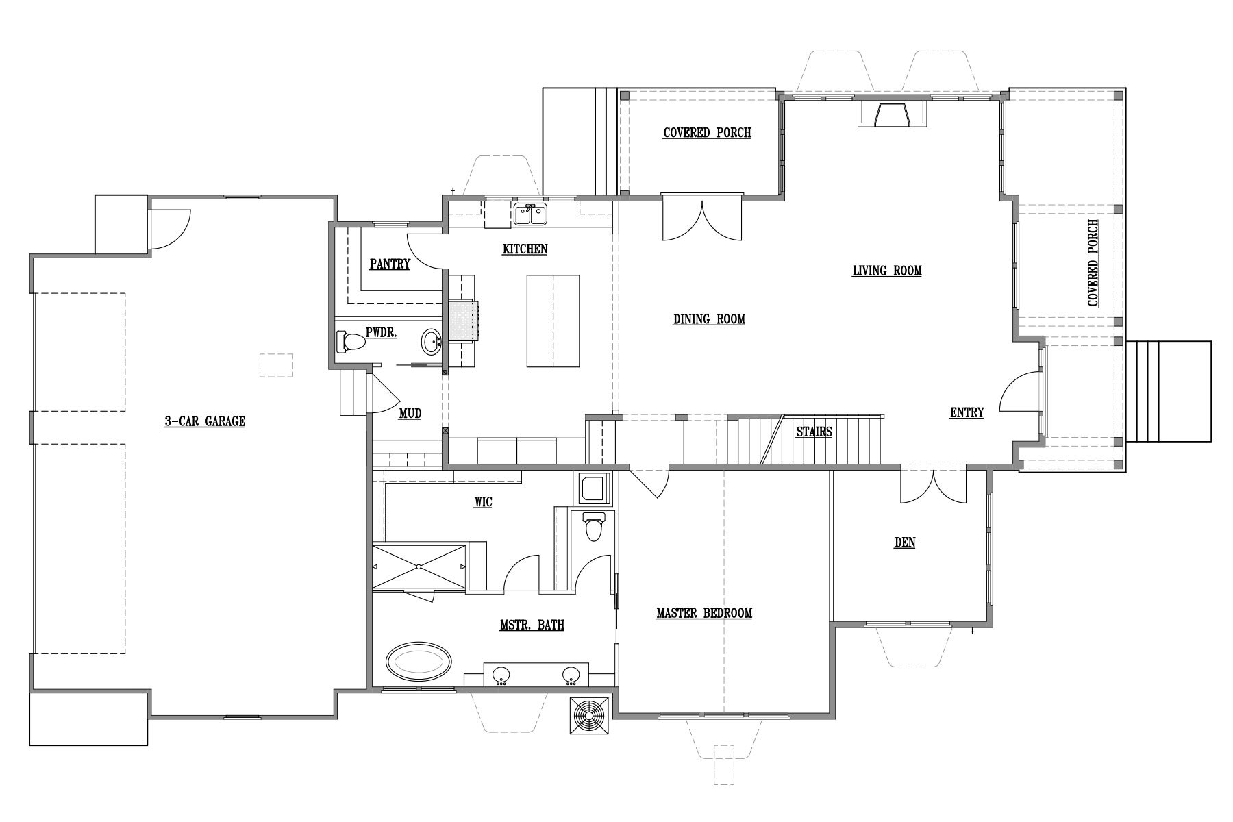
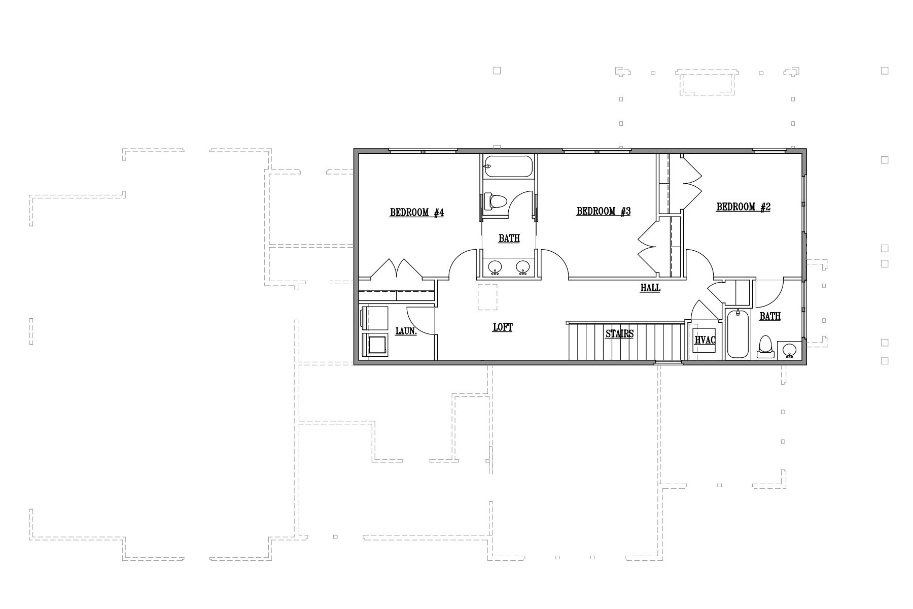
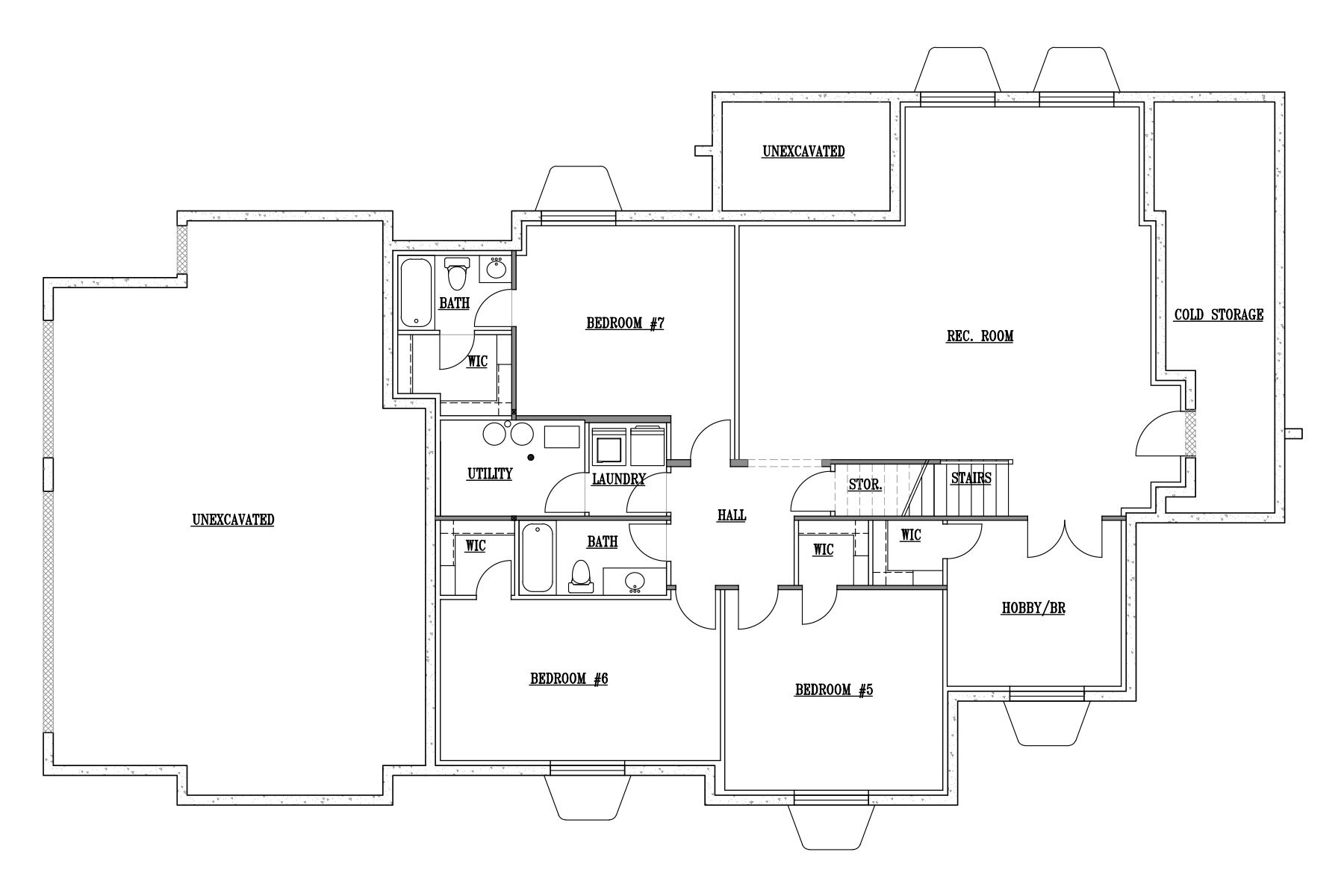
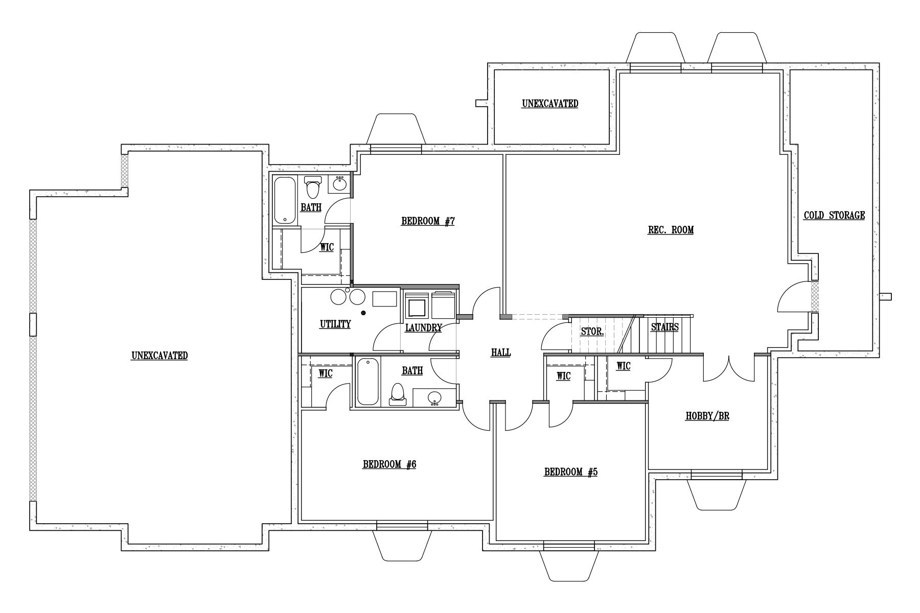
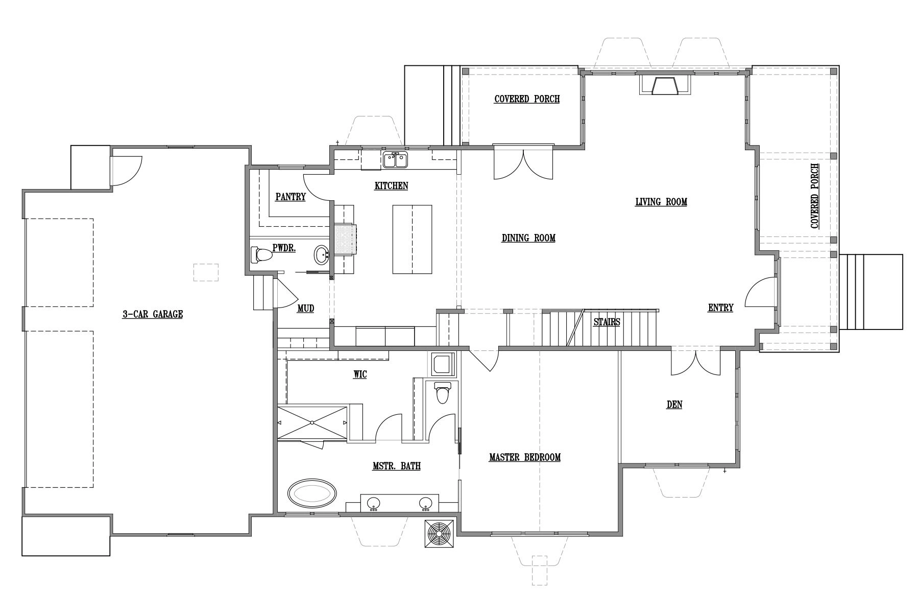
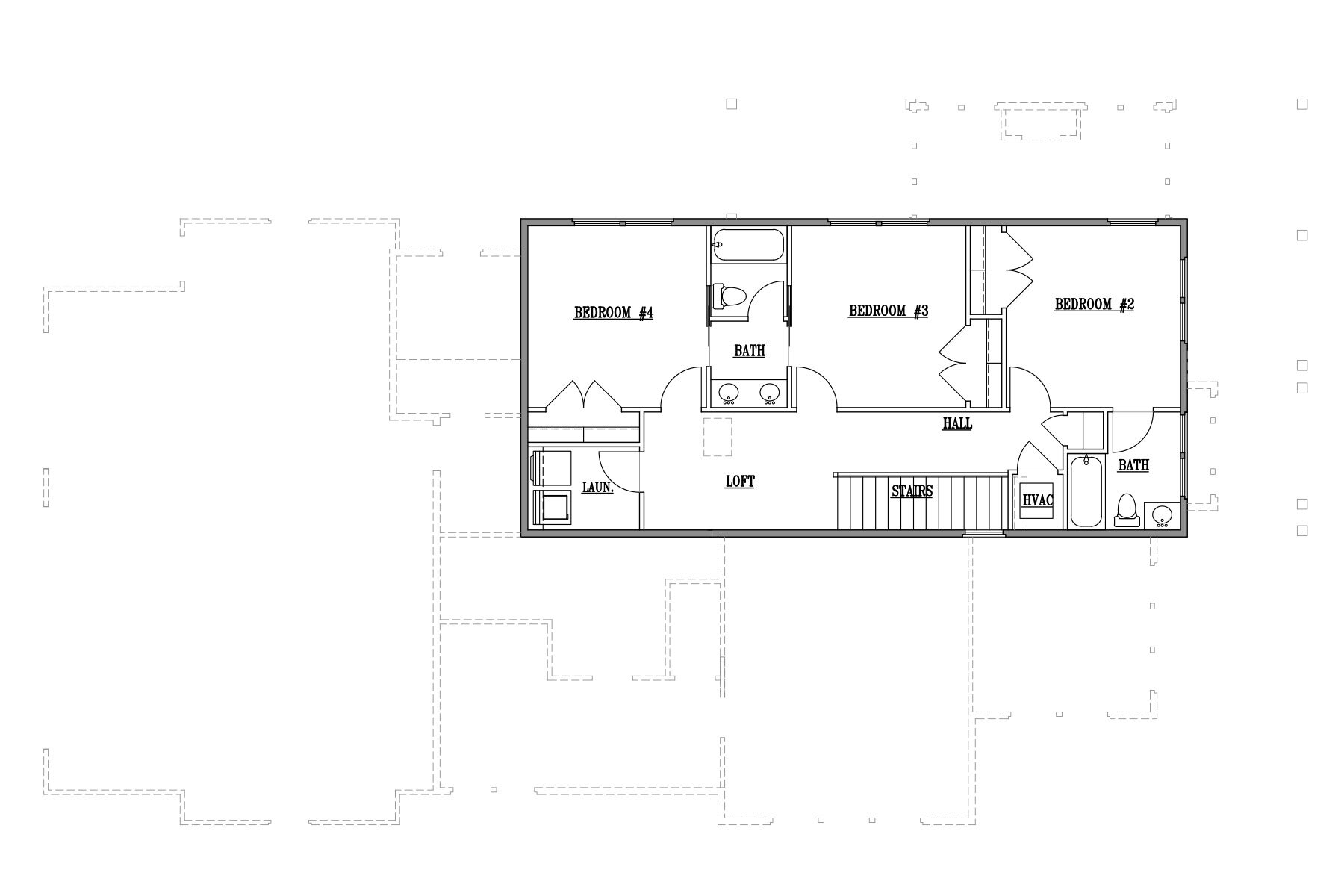
The Goldfield blends modern design with natural elegance, offering a vaulted-ceiling owner’s suite and two covered porches to take in breathtaking mountain views. A main-level den with double doors adds flexibility, whether as a home office or quiet retreat. The fully finished basement provides incredible versatility with a large rec room, three bedrooms, two full baths, cold storage, and a hobby room that could serve as an additional bedroom. Thoughtfully crafted with eco-friendly finishes and exceptional attention to detail, the Goldfield is designed for comfort, functionality, and a seamless connection to its surroundings.
Virtual Tour
Take the professional 360 degree virtual tour of our Goldfield Farmhouse floor plan.
Explore More Homes from Our Portfolio
Get In Touch
Interested in building a home like this? Get in touch with us today to talk through the process of building a luxury home with Rainey.
This website is secure
Your information is safe with us!
Sales Agent
Kaylee Thompson
I've been proudly representing Rainey Homes for over 6 years. Let's chat about your next home.
AIM Realty, Inc.
Preferred Lender:

Closing cost incentives may be available for this home when you use our preferred lender.
(801) 810-6503 | www.Team101.com | West Jordan, UT 84081 | Member FDIC |











































